

















submitted by
Amelie Johanna Steffen, Julius Baumanns
Supervising professorship
Professur Entwerfen und StadtArchitektur, Professur Entwerfen und Wohnungsbau
Advisors
Prof. Andreas Garkisch, Johann Simons, Jessica Christoph
Degree programme:
Architecture (Bachelor of Science (B.Sc.))
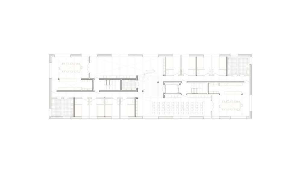
Das Areal des ehemaligen Zehntspeichers in Zwingenberg dient uns als Versuchsfeld, um dortige Wohn- und Arbeitsformen zu hinterfragen. Einst wurden hier Getreide und Wein gelagert und verarbeitet, später öffnete sich das Haus als Jugendherberge der Stadt. Neue Handlungsspielräume knüpfen an diese kollektiv-produktive Nutzungsgeschichte an und verleihen der Situierung zwischen Stadt und Weinberg neue Bedeutung. Das Bestandshaus wird um drei Volumen ergänzt und über einen Hof und einen Garten miteinander verknüpft. Anhand wechselnder Verhältnisse zwischen produktiven und nicht-produktiven Tätigkeiten werden verschiedene Formen des Zusammenlebens definiert.
Der erhaltene Gewölbekeller wird zur Kellerei. Über seinen Mauern beherbergt das neue Haus Tätige aus Weinbau und Küchenkultur. Die Konstellation aus bescheidenen Zimmern und großen Gemeinschaftsräumen bestimmt eine enge Verschränkung des temporären Wohnens und Arbeitens.
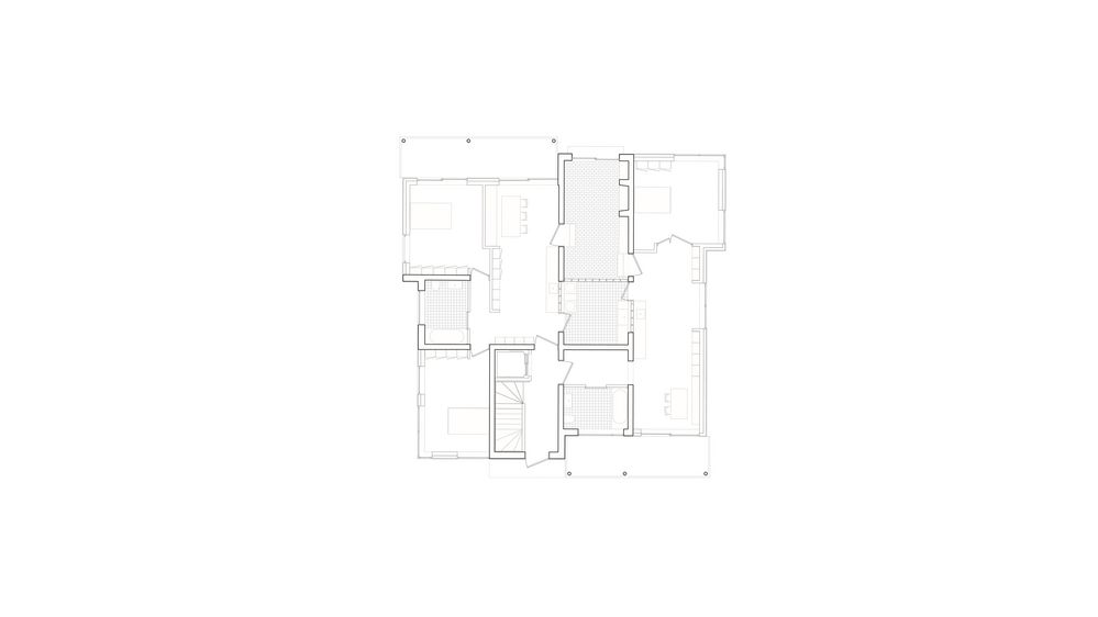
Im Kontrast dazu trennen Wohnhäuser und Arbeitshaus gezielt beide Sphären: Die Waschküche etwa bündelt Hausarbeiten und entzieht sie dem Wohnraum; das Gartenzimmer widmet sich der Pause. Beide verbinden zwei, zueinander verschobene Wohneinheiten – produktive und nicht-produktive Tätigkeiten werden zu Protagonisten des nachbarschaftlichen Zusammenlebens.
In Zeiten in der die Arbeit für viele von überall stattfindet, verstehen wir die klare Differenzierung der beiden Tätigkeiten als willkommenes Ritual, um sich dergleichen bewusst hingeben zu können.
Changes from color to monochrome mode
contrast active
contrast not active
Changes the background color from white to black
Darkmode active
Darkmode not active
Elements in focus are visually enhanced by an black underlay, while the font is whitened
Feedback active
Feedback not active
Halts animations on the page
Animations active
Animations not active