Ackerbürgerscheunen Weimar
Project information
submitted by
Mathis Lehna
Mentors
Prof. Dr. phil. habil. Hans-Rudolf Meier, Christine Dörner M.Sc.
Degree programme:
Architecture (Bachelor of Science (B.Sc.))
Project description
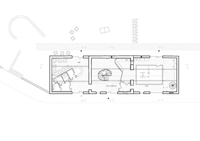
Weimar blickt nicht nur auf eine Geschichte als Residenz- und Kulturstadt zurück, sondern war zeitweilig auch sehr stark landwirtschaftlich geprägt. Ein Relikt dieser Zeit sind die denkmalgeschützten Ackerbürgerscheunen in der Coudraystraße. Neben ihrer historischen Bedeutung sind sie auch städtebaulich für die Coudraystraße ein wichtiges Gelenk.
Nach einer vorangegangenen Untersuchung der Baugeschichte und des Bestandes wird ein Umgang mit dem Gebäude gefunden. Dabei ist ein Nutzungskonzept für die Scheunen bedeutsam.
Neben einem Klimalabor des Lehrstuhls für Bauphysik finden hier universitäre Nutzungen ihren Platz, die eine Brücke zur Öffentlichkeit schlagen: ein Ausstellungsraum, ein Seminarraum und ein Café. Sie können bei der Weiterentwicklung des Campus Coudraystraße eine Schlüsselrolle spielen, indem sie Präsentation und Austausch über die Arbeit der Fakultät Bauingenieurwesen ermöglichen und zu einem belebten Campusort werden.
Das zentrale Element des Klimalabors wird die Klimakammer sein, die als Raum im Raum funktioniert. Der Gedanke eines unerwarteten Objektes, das als Körper in der Scheune steht, lässt sich weiterspinnen und wird ein Leitgedanke dieses Entwurfs: In der alten Gebäudestruktur stehen eigenwillige Körper, die Räume beherbergen und gleichzeitig um sie herum neue Räume formen. Sie durchdringen die Scheunen auch in der Höhe, durchstoßen ihre Außenhaut und machen dabei die Vorgänge innerhalb der Scheune nach außen sichtbar.









