Entwerfen + Baukonstruktion

Bauhaus-Universität Weimar
  • Aktuell

    • Termine und Mitteilungen

      • THESIS

        Die Bewerbung für die Bachelor- und Master-Thesis erfolgt bis zum 15.03. für das Sommersemester und bis zum 15.09. für das Wintersemester. Für die Bearbeitung der Master-Thesis steht es offen, ein eigenes Thema vorzuschlagen oder das angebotene Semesterthema zu bearbeiten. Zur Bearbeitung der Bachelor-Thesis wird ausschließlich das Semesterthema angeboten. Wir bitten um ein Portfolio als Pdf (max. 10 MB). Bitte senden sie uns ihre Bewerbung per E-Mail an bauko@archit.uni-weimar.de. Ansprechpartnerin zu Bewerbung, Ablauf und weiteren Thesisangelegenheiten ist Sophia Springer.

        Wir freuen uns auf Ihre Bewerbung!

      • Empfehlungen

        Bei Anfragen für die Ausstellung von Empfehlungsschreiben bitten wir darum, ein Motivationsschreiben, CV und Portfolio an sophia.springer@uni-weimar.de zu senden.
        Dabei ist bitte auch zu beachten, dass für die Bearbeitung ein Vorlauf von mindestens 14 Tagen erforderlich ist.

  • Professur

    bauko@archit.uni-weimar.de

    • Profil

      Die Baukonstruktion ist eine wesentliche Grundlage des Entwerfens und des Bauens. Erst die Kenntnis der Materialien und Bauelemente erlaubt deren sinnvolle Fügung zu einem Bauwerk. Dem Vermitteln baukonstruktiver Zusammenhänge kommt daher eine grundlegende Bedeutung in der Lehre zu. Die Studierenden lernen Entwurfsmethoden kennen, mit denen sie befähigt werden, die Konstruktion als einen integralen Bestandteil des Entwurfsprozesses zu entwickeln. Dabei wird nicht nur auf materialspezifische Besonderheiten eingegangen, sondern auch der regionale und kulturelle Kontext von Bauweisen beleuchtet. Die Formfindung in der Architektur ist eines der wichtigsten Themen in der Architekturausbildung. Es werden Ansätze und Entwurfswerkzeuge entwickelt, indem Typologien und die ihr zugehörigen Konstruktionen als ineinander Verschränke Gerinnungsformen einer zugrundeliegenden Idee herausgearbeitet werden.

    • Leitung

      • Prof. Dipl.–Ing. Johannes Kuehn

        • Kontakt

          Belvederer Allee 1
          99423  Weimar
          Raum 104

          03643 58 31 76

          johannes.kuehn@uni-weimar.de

        • Vita

          Johannes Kuehn ist Professor für Entwerfen und Baukonstruktion an der Bauhaus-Universität Weimar. Er studierte Architektur an der TU Berlin und der Universidade do Porto. Anschließend sammelte er in den Niederlanden erste Berufserfahrungen. Er unterrichtete als Gastdozent an der Universitat de Girona und der énsa-v in Versailles sowie als Gastprofessor an der RWTH Aachen. Als Partner des Architekturbüros Kuehn Malvezzi ist er durch zahlreiche Projekte vor allem im kulturellen Bereich hervorgetreten. Nach einem vielbeachteten Beitrag zur Rekonstruktion des Berliner Stadtschlosses, in dessen Folge dem Büro der Deutsche Kritikerpreis verliehen wurde, beschäftigt er sich derzeit u.a. mit dem House of One, einem Ort des interreligiösen Austauschs im Zentrum Berlins sowie der Nutzung von Dachflächen für das Urban Farming in Gewächshäusern.

    • Administration

      • Sophia Springer

        • Kontakt

          Belvedere Allee 1
          99423  Weimar
          Raum 104

          03643 58 31 76

          sophia.springer@uni-weimar.de

    • Wissenschaftliche Mitarbeiter*innen

      • Dipl.–Ing. Martin Ahner

        • Kontakt

          Belvederer Allee 1
          99423  Weimar
          Raum 104

          03643 58 30 56

          martin.ahner@uni-weimar.de

      • Dipl.–Ing. Marlene Külz, M.Sc.

        • Kontakt

          Belvederer Allee 1
          99423  Weimar
          Raum 104

          03643 58 30 57

          marlene.kuelz@uni-weimar.de

      • Paco Motzer, M.A.

        • Kontakt

          Belvederer Allee 1
          99423  Weimar
          Raum 104

          03643 58 30 54

          paco.motzer@uni-weimar.de

      • Dipl.–Ing. Marie–Theres Weiß

        • Kontakt

          Belvederer Allee 1
          99423  Weimar
          Raum 104

          03643 58 30 58

          marie-theres.weiss@uni-weimar.de

      • *Ehemalige Wissenschaftliche Mitarbeiter*Innen

        Soetje Beermann, M.A.
        Thijs A. W. ten Brummelhuis, M.Sc. ETH
        Judith Käding, M.Sc.
        Dipl.–Ing. Robert Ochsenfarth, MAS ETH CS
        Dr.-Ing. Johannes Warda
        Konrad Wolf, M.A. M.Sc.

  • Grundlagen der Baukonstruktion

    • Vorlesung Wintersemester

      • Inhalt

        Das Bauen ist traditionell eng gekoppelt an die Verfügbarkeit von Baumaterialien sowie das Know-how ihrer Verarbeitung. Jedes Gewerk besitzt eine lokale Entwicklungsgeschichte, die zunehmend durch allgemeine Standards und Normen international vereinheitlicht wird. Materialien treten uns im Gebäude in zwei Funktionen entgegen: als Konstruktionsmaterial sowie als Oberfläche. Viele Materialien können je nach Verwendung sowohl konstruktive als auch raumbildende Aufgaben übernehmen, was ihren Einsatz sehr vielfältig macht. Die Vorlesungsreihe im Wintersemester hat zum Inhalt, in die grundlegenden Zusammenhänge von Tragwerk und Raumbildung einzuführen, um dann die Bauweisen von den Eigenschaften der Materialien und deren Verwendungsmöglichkeiten her zu entwickeln.

    • Vorlesung Sommersemester

      • Inhalt

        Im Sommersemester liegt der Fokus materialübergreifend auf den Bauelementen sowie den Techniken des Fügens. Neben der Vermittlung von Grundwissen zu bautechnischen Lösungen im Bereich Gründung, Dichten und Dämmen sollen hier vor allem die Elemente in ihrer baukulturellen Entwicklung und Vielfalt gezeigt werden. Dabei wird der Bogen gespannt von der Raumerfahrung über die Ordnungsprinzipien des Bauwerks bis hin zu seinen Details.
        Von zunehmender Bedeutung ist die Betrachtung des Gebäudes in seinem gesamten Lebenszyklus. Den Studierenden soll vermittelt werden, wie Entwurfsentscheidungen beeinflusst werden können durch das Einbeziehen von Überlegungen zur Ökologie, Energiebilanz und Recyclefähigkeit der verwendeten Baustoffe.

    • Übung

      • Madame Parali

        BA S24

        Übung — bachelor — sommer 2024

        Anhand eines gegebenen Vorentwurfes für ein Gartenhaus werden in vertiefenden Betrachtungen einzelne Detailpunkte dieser Kleinarchitektur exemplarisch erläutert. Daran anschließend sind die Detailpunkte selbstständig zu entwickeln bzw. zu ergänzen und sollen von der ersten Skizze zu einer gebundenen Maßstabszeichnung überführt werden. Mit der konstruktiven Entwicklung dieser Details wird das Haus weiterentworfen und ihm sein Ausdruck verliehen. Eine begleitende Selbstkontrolle gibt Aufschluss und fordert ggfs. zu konstruktiven Änderungen auf. Ziel dieser Übung ist, am Kursende neben einem funktionierenden Gebäudeentwurf alle relevanten baukonstruktiven Detailpunkte als zusammenhängenden Fassadenschnitt zu erläutern. Ein Modell ergänzt die gestalterische Absicht und gibt Einblicke in die Konstruktion des Gebäudes. Zu den Modalitäten und Umfang der Übungsfolge wird in der Auftaktveranstaltung näher eingegangen.

      • Trafik - Ort der Kleingkeiten

        BA S23

        Übung — bachelor — sommer 2023

        Ein fester Bestandteil im Bachelor Curriculum des ersten Studienjahrs (2. Semester) ist das vorlesungsbegleitende Übungsformat zu den Grundlagen der Baukonstruktion. Auf Grundlage eines ortsgebundenen Kurzentwurfes werden in vertiefenden, wöchentlichen Betrachtungen einzelne baukonstruktive Detailpunkte exemplarisch erläutert und selbstständig auf das eigene Bauvorhaben modifiziert, d.h. in einer gebundenen Maßstabszeichnung im M 1:5 regelkonform gezeichnet. Eine individuelle Kommentierung gibt Aufschluss und fordert ggfs. zu konstruktiven Änderungen auf. Ziel dieser Übung ist, am Kursende, neben einem funktionierenden Gebäudeentwurf (Tiny House), alle relevanten baukonstruktiven Detailpunkte als zusammenhängenden Fassadenschnitt zu erläutern.
        Ein Detailmodell ergänzt die gestalterische Absicht. Zu den Modalitäten und Umfang der Übungsfolge wird in der Auftaktveranstaltung näher eingegangen.

      • Rebholz

        BA S21

        übung — bachelor — sommer 2021

        Wenn wir in der Architektur von einem Detail sprechen, es zu lesen versuchen, sind wir anfänglich von dessen Komplexität womöglich beeindruckt, wenn nicht überfordert. Jedoch beschreibt eine solche Zeichnung lediglich das Gemachtsein von etwas. Diese Übung soll dazu dienen, solche Zeichnungen mit ihren Konventionen lesen zu lernen, zu imitieren, zu adaptieren und ein erstes Grundverständnis für die Baukonstruktion zu erlangen. Darüber hinaus wird das Besprechen vieler gebauter Beispiele die Erkenntnis befördern, dass die Lösung zu einem Problem häufig nicht in einer singulären Antwort liegt. Das birgt nicht nur eine unglaubliche Beruhigung, sondern ist zugleich Herausforderung und Motivation, vor dem Hintergrund eines physikalischen Grundverständnisses, selbst zu denken und nach individuellen Einzellösungen zu suchen.In jeder Seminarstunde werden wir das Thema bzw. Bauteil aus der Vorlesung aufgreifen und in konkreten Zusammenhängen erläutern. Als Zweierteams arbeiten wir uns so peu à peu durch alle Detailpunkte des zu planenden Hauses: Angefangen mit der Wand, über Fenster-, Dach- und Deckenanschlüsse bis hin zu Fundament und Treppe. Ausgehend von Standardlösungen öffnen wir den Blick hin zu Sonderlösungen, um die Bandbreite des Möglichen zu zeigen.

        • Mia Naja Mucke + Joel Taudien
        • Julia Nieder + Franziska von Wedel
        • Anna Walzer + Ole Winkler
        • Johannes Reimann + Felix Tepel
        • Mara Felber + Theresa Unverricht
      • Walden

        BA S20

        Übung — bachelor — sommer 2020

        ‚As you simplify your life, the laws of the universe will be simpler; solitude will not be solitude, poverty will not be poverty, nor weakness weakness.‘ – Henri David Thoreau

        Mit dem Übungsformat „Grundlagen der Baukonstruktion“ widmen wir uns einer kleinen, imaginären Bauaufgabe. Der Titel ‚Walden‘ verweist hier auf Henri David Thoreau’s Experiment Mitte des 19. Jahrhunderts, sich den zivilisatorischen Zwängen zu entziehen und der Einfachheit in der Natur zu zuwenden. Die Abwesenheit von Komfort ist nicht gleichbedeutend mit einem ästhetischen Verlust, im Gegenteil: Die Konzentration auf entwerferische Feinheiten und Details tritt leuchtend in den Vordergrund und zeugt von einer gestalterischen Haltung. Das kann sich über sehr vordergründige Bauteiloberflächen, über ein Fugen- oder Schraubenbild von Wandbekleidungen bis hin zu subtilen Raumeinbauten artikulieren. Am Anfang jedoch steht ein Vorbild, in der Architektur sprechen wir von einem Referenzbeispiel. Dieses Vorbild, im Zusammenspiel mit dem Ort, einer gegebenen Konstruktionsweise und einer Idee vom Gebrauch dieser kleinen Architektur soll Grundlage ihres gestalterischen Handelns werden. Die anfänglich, intensive Auseinandersetzung mit dem Referenzobjekt ist impulsgebend für den Charakter ihres Entwurfes - nicht im Sinne eines Plagiats, sondern aus semantischer Sicht der Identitätsstiftung.

        • Andrea Ujvari + Florian Meißner
        • Paula Heucke + Carl Fletcher
        • Maria Hamann + Marian Boetzl
        • Mona Rauch + Elias Richter
      • Into the wild

        BA S19

        Übung 2. Semester — bachelor — sommer 2019

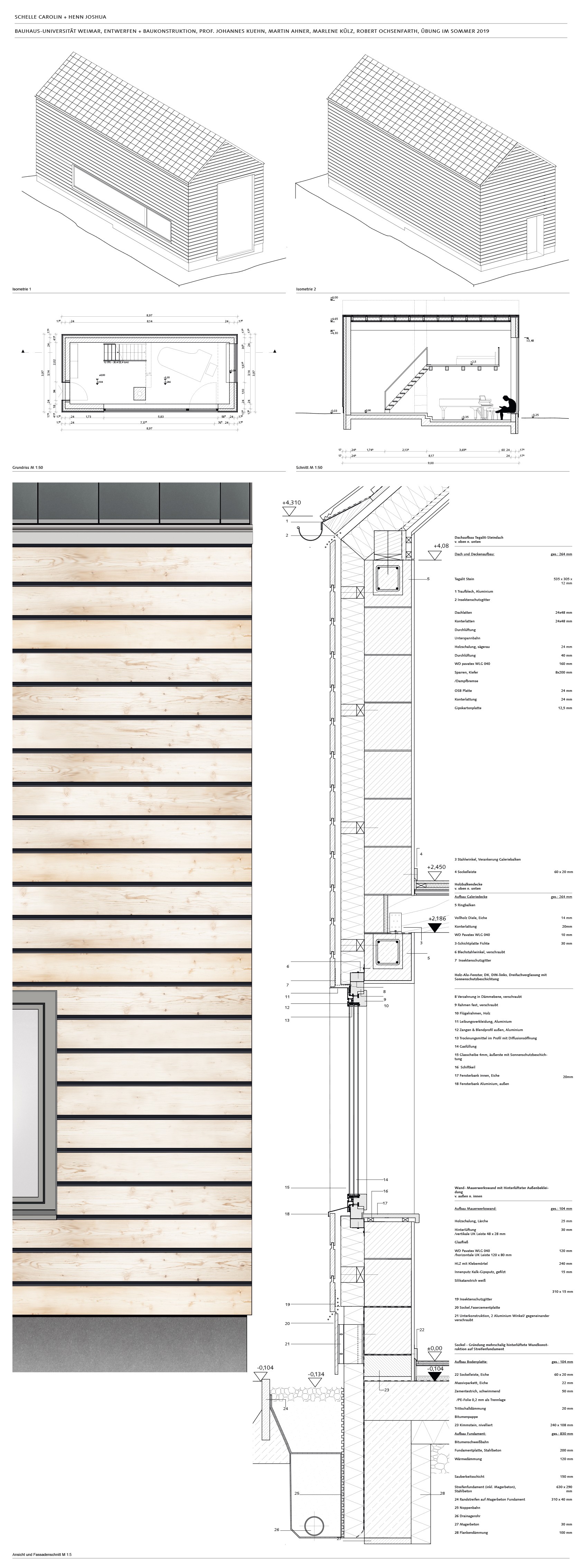
        Im 2. Semester des Architekturstudiums kommt auf die Studierenden die Auseinandersetzung mit dem konkreten Bauen zu. Ein erstes Mal gilt es sich die Abhängigkeiten zwischen Ästhetik, Material und Konstruktion zu vergegenwärtigen. In den Vorgaben einer kleinen Bauaufgabe, ein Refugium am Rande der Stadt ohne viel Komfort, wird der Fokus auf die Form und das Detaillieren gelegt. Die Studierenden werden vom Fuß bis zum Scheitel ein Haus entwerfen und konstruieren. Fundament, Wand, Fenster, Decke und Dach müssen im Gesamten zu einer Einheit gefügt werden. Dabei ist nicht nur das technisch richtige Konstruieren gefragt, sondern es soll vielmehr der Zusammenhang zwischen Gestaltungswillen und den Zwängen seiner physischen Repräsentation dem Studierenden der Architektur als sein eigenstes Thema vor Augen geführt werden.
        Parallel zur Vorlesung „Grundlagen der Baukonstruk-tion“ bietet die Übung den Studierenden die Gelegen-heit die gewonnen Erkenntnisse aus der Vorlesung besser zu verstehen und deren praktische Anwen-dung zu erlernen. Jede Übungsstunde konfrontiert die Studierenden mit einem neuen Thema bzw. Detailpunkt am Haus. Stück für Stück werden Wand, Fenster, Decke, Treppe, Dach und Sockel erklärt und bearbeitet. Als wöchentliche Hausarbeit wird ein Teilbeleg in Form einer maßstäblichen Zeichnung zum jeweiligen Thema bzw. Detailpunkt angefertigt. Als Endbeleg sind die aktualisierten einzelnen Teilbelege zu einem zusammenhängenden Fassadenschnitt im Maßstab 1:5 zuzüglich ergänzenden Zeichnungen wie Grundriss, Schnitt und Ansichten zusammenzufügen. Ein detailiertes Fassadenschnittmodell im M 1:10 ist ebenfalls als Abgabeleistung am Ende des Semesters gefordert.

        Das vorgegebene Areal ist eine kleine Lichtung oberhalb der Ilm, in der Nähe des Ortes Buchfart. Der Blick über den Steilhang in das Flusstal prägen den Charackte des Ortes.
        Die Form des Hauses, seine Ausrichtung, die Lage der Öffnungen in den Wandflächen, die Dachneigung und die innere Organisation ist weitestgehend frei bestimmbar. Das Haus ist nicht unterkellert und soll nur einen Raum und eine Schlafgalerie besitzen. Das Dach ist als Warmdach oder Kaltdach auszubilden und wird in Holz mit entsprechender Dämmung und Dacheindeckung detailliert. Die Galerie spannt von Außenwand zu Außenwand und ist als Holzbalken-decke auszuführen, eine geeignete Erschließung ist von zu planen.

        • Carolin Schelle + Joshua Henn
        • Dania Hajjar + Yuegong Huang
        • Lotte Becher + Hannah Essigkrug
      • Wo die wilden Kirschen blühen

        BA S18

        Übung 2. Semester — bachelor — sommer 2018

        Neben der „großen“ Architektur der Stadt, mit ihrem komplexen Gefüge und ihren vielschichtigen Funktionen, gibt es für viele Stadtbewohner die Sehnsucht nach einem einfachen Rückzugsort. Ein Haus für das ungestörte Erholen und konzentrierte Arbeiten, ohne Ablenkung, ohne Luxus, unmittelbar an der Natur.
        In diesem Sommersemester ist ein solcher Rückzugsort an der alten Kirschplantage am Schloss Belvedere zu entwerfen. Verschiedene Szenarien von dichtem Grün bis zur freien Fläche laden zur Setzung des Rückzugsortes ein. Einfachheit und der Blick für das Wesentliche sind dabei das Leitmotiv. Ziel ist es, einen Gedanken so in Architektur zu gießen, dass der architektonische Charakter durch das physisch Konstruierte zum Ausdruck gebracht wird.
        Dabei wird dem Haus eine Verortung in der Landschaft gegeben, es im Boden gegründet, seine Wände nach oben geführt, Fenster und Tür ein Platz darin vorgesehen sowie ein schützendes Dach über den Mauern aufgespannt. Die Form des Hauses, seine Ausrichtung, die Lage der Öffnungen in den Wandflächen, die Dachneigung und die innere Organisation ist weitestgehend frei zu bestimmen. Das Haus ist nicht unterkellert und hat nur einen Raum mit Galerie.
        Jede Entscheidung hat einen Einfluss auf die Anmutung des kleinen Hauses: die Proportion des Gebäudevolumens, der Tür, des Fensters, die Neigung des Daches, die Materialität im Inneren wie im Äußeren. Es wird notwendig sein, eine Methode zu entwickeln, mit der die auftretenden Fragen beantwortet werden können. Und am Ende ist das kleine Haus nicht nur entworfen sondern auch konstruiert.

        • Johanna Hemberger + Julian Pracht
        • Luise Dieckhoff + Anna Zipp
        • Sarah Silbernagel + Marie Scheidemann
      • Hide Out

        BA S17

        bachelor — sommer 2017

        Neben der „grossen“ Architektur der Stadt , mit ihrem komplexen Gefüge und vielschichtigen Funktionen, gibt es für viele Stadtbewohner die Sehnsucht nach dem einfachen Rückzugsort . Ein Haus für das ungestörte Erholen und konzentrierte Arbeiten, ohne Ablenckung, ohne Luxus, unmittelbar an der Natur.
        Einfachheit und der Blick auf das Wesentliche sollen das Leitmotiv sein. Es soll gelingen, einen Gedanken so in Architektur zu giessen, das der architektonische Charakter durch das physisch konstruierte zum Ausdruck gebracht wird. Dabei wird einem Haus ein Platz in der Landschaf t gegeben, es wird im Boden gegründet, seine Wände nach oben führen, Fenster und Tür wird ein Platz geben, und ein Dach über den Mauern aufspannen. Jede Entschei-dung die gefällt wird hat einen Einfluss auf die Anmutung der Hütte. Die Propor tion des Gebäudevolumens, der Tür, des Fensters, die Neigung des Daches, die Materialität im Inneren wie im Äusseren. Es wird notwendig sein, das eine Methode entwickelt, mit der die kommenden Fragen beantwortet werden können. Und am Ende ist das erste Haus nicht nur entworfen, sondern auch konstruiert.

        • Franziska Heldmann + Grisha Schmidt
        • Mara Günther + Paul Knopf
        • Mathilda Hoffmann + Jan Hüttmann
    • Prüfung

      Am Ende des Sommersemesters schließt eine schriftliche Prüfung die Vorlesungsreihe ab.
      Zulassungsvoraussetzung ist die bestandene Übung.
      Für das Nachholen und Wiederholen der Prüfung gibt es einen weiteren Termin im Wintersemester.

  • Entwurf

    • Authenzität und Terroir

      BA W25

      3. Kernmodul — bachelor — winter 2025

      Im Kontext eines bestehenden Weinbaubetriebes in der heimischen Weinbauregion Saale-Unstrut soll ein ergänzender Entwurf entwickelt werden, der dem Betrieb eine neue Außenwirkung und ein zeitgemäßes Erscheinungsbild verleiht. Ziel ist es, zum bestehenden Weingut einen neuen Ausschankbereich mit Vinothek sowie eine kleine Produktionsstätte zu entwerfen. Diese sollen sich durch eine sorgfältige Materialwahl und eine feingliedrige, sorgfältig gestaltete Konstruktion auszeichnen und dadurch eine architektonische Haltung mit einem selbst definierten Ausdruck wiederspiegeln.

      Ein besonderes Augenmerk liegt auf klimagerechtem, ressourcenschonendem Bauen. Der Entwurf fokussiert sich deshalb auf materialgerechte, nachhaltige Konstruktionen, bei denen die Struktur und Materialisierung der Raumbildung eine herausragende Bedeutung zukommt.

      Der Entwurfsprozess wird begleitet durch ein konstruktives Seminar sowie eine thematisch passende Exkursion, die den praktischen Bezug zum Weinbau, zur Architektur und zur Materialisierung im regionalen Kontext vertieft.

    • Post-Carbon-Architecture

      BA+MA W25

      Projektmodul + 5. Kernmodul — bachelor + master — winter 2025

      Architektur spielt eine entscheidende Rolle bei der Bewältigung ökologischer Herausforderungen.
      Daher ist eine kritische Auseinandersetzung mit Materialeinsatz, Konstruktion und den Auswirkungen des eigenen Entwerfens notwendig.
      Im Wintersemester rücken wir das Material ins Zentrum unserer Betrachtungen. Seine spezifische Logik prägt Konstruktion, Tektonik und Detail – und bestimmt damit sowohl die ökologische Angemessenheit als auch die architektonische Ausdruckskraft. Ziel ist eine Architektur, die aus dem Zusammenspiel von Bestimmung, Ressourcenverbrauch und Gestaltung entsteht – als kulturell verankerter, ökologisch wirksamer, sinnhafter und langlebiger Bauansatz.

    • Le Grand Paris - Conserver Adapter Transmettre

      BA+MA S25

      5. Kernmodul | Projektmodul — bachelor + master — sommer 2025

      In den letzten Jahren wurden durch das Pariser Amt für sozialen Wohnungsbau bereits mit Nachdruck Bürogebäude im Zentrum von Paris gekauft, um diese zu transformieren. Ein gutes Beispiel ist das Ilot Saint Germain von Brugel Architects, das vor ein paar Jahren fertiggestellt wurde. Die Umwandlung der ehemaligen Büros des Militärministeriums in Sozialwohnungen, eine Kindertagesstätte, eine Turnhalle und einen Garten macht den îlot Saint-Germain zu einem erfolgreichen Beispiel für Stadterneuerung.
      Unsere Entwurfsaufgabe wird in eine eben solche Transformation eines Bestandsgebäudes sein, das derzeit für Büroflächen genutzt wird und sich in einen modernen Komplex für Wohnen und Gewerbe wandeln soll.
      Neben der Akzeptanz des Bestehenden, das in seiner urbanen Eigenlogik gestärkt werden soll, ist ein architektonisches Konzept zu entwickeln, das innovative und zukunftsweisende Elemente integriert. Der Entwurf soll nachhaltige Bauprinzipien berücksichtigen, wie etwa den Einsatz ressourcenschonender Materialien, klimagerechte, energieeffiziente Systeme und eine umweltbewusste Bauweise. Ein besonderes Augenmerk liegt auf der Gebäudehülle, der somit eine tragende Rolle zukommt. Zudem muss das Gebäude soziale Interaktionen fördern, indem es flexible Wohn- und Arbeitsräume schafft, die auf die Bedürfnisse einer vielfältigen, urbanen Gemeinschaft eingehen. Ziel ist es, ein zukunftsfähiges, lebenswertes Gebäude zu entwerfen, das ökologisch und sozial nachhaltig ist.

    • Con|Temporary

      BA W24

      3. Kernmodul — bachelor — winter 2024

      In diesem Wintersemester werden wir uns beim Entwurf eines temporären Konzerthauses einer Reihe von drängenden Themen unserer Zeit stellen und gemeinsam daran arbeiten, darauf angemessene entwurfliche Antworten zu finden. Unser Ziel ist es, ein öffentliches Gebäude zu schaffen, das als Konzertsaal dient, aber auch eine breite Palette von Kulturveranstaltungen beherbergen kann. Dieser Ort soll eine offene und einladende Institution werden, die verschiedenen Kulturinstitutionen der Stadt als temporäre Heimat dient. Dazu gehören beispielsweise das Kinder- und Jugendtheater, der Zirkus, das DNT, unsere beiden Universitäten oder das Spiegelzelt. Diese Institutionen finden hier ein Zuhause für besondere Aufführungen und können so die kulturelle Landschaft von Weimar bereichern.

      Als Standort für unser Projekt haben wir den Beethovenplatz vor dem Schloss ausgewählt, einen einzigartigen Ort am Übergang von der belebten Innenstadt in den landschaftlichen Ilmpark. Wir wollen uns der Aufgabe auf vielfältige Weisen nähern, um herausfinden, welche Potenziale sich dadurch erschließen lassen. Das ist zunächst der städtebauliche Kontext, der dazu einlädt, die Verbindung zwischen der Stadt und dem Park im Konzerthaus zu artikulieren. Durch die Integration von Innen- und Außenräumen streben wir nach einem einladenden und zugänglichen Erlebnis für alle.
      Eine weitere wichtige Überlegung ist das Maß an Offenheit und Öffentlichkeit, das unser Gebäude ausstrahlen soll. Wir wollen einen einladenden Raum schaffen, der Menschen aus allen Bereichen der Gesellschaft anspricht und gleichzeitig den besonderen Standort architektonisch widerspiegelt. Das Herzstück unseres Entwurfs ist der Konzertsaal, und wir widmen uns der Aufgabe, ihm einen einzigartigen Charakter zu verleihen, der den Ausdruck der Musik und der Aufführungen unterstreicht.
      Darüber hinaus stehen wir vor der Herausforderung, eine architektonisch durchdachte Materialauswahl zu treffen und die sortenreine Trennung der Materialien am Ende des Lebenszyklus des Gebäudes zu planen. Wir fragen uns: Wie können wir sicherstellen, dass das Gebäude an einem anderen Ort neu aufgebaut und wiederverwendet werden kann, und welche Auswirkungen hat dies auf sein Erscheinungsbild?
      Gleichzeitig erkunden wir die Möglichkeiten, Räume mit konstruktiven und architektonischen Mitteln zu charakterisieren und zu gestalten. Wir werden die Raumwirkung und -atmosphäre mithilfe großer Modelle und räumlicher Darstellungen untersuchen und uns so Arbeitswerkzeuge schaffen, mit denen wir unseren Entwurf fortlaufend überprüfen und verbessern können.
      Durch diesen reflektierenden Entwurfsprozess werden wir nicht nur innovative Architekturen entwickeln, sondern auch lernen, die Entwurfsaufgabe so zu gliedern, dass es uns gelingt, zu spezifischen und komplexen Lösungen zu gelangen. Wir stellen uns den Herausforderungen unserer Zeit und schaffen Räume, die nicht nur funktional sind, sondern auch unserem Anspruch an nachhaltiges Bauen und kulturellen Ausdruck gerecht werden.

    • Re|Assemble:Prag

      BA+MA S24

      5. Kernmodul | Projektmodul — bachelor + master — sommer 2024

      Jeder Entwurf beginnt mit einem Kontext - gesellschaftlich, kulturell, geschichtlich aber auch baulich. Jeder Eingriff verhält sich auf die eine oder andere Weise zu diesem Kontext. Architekt*innen müssen die spezifischen kontextuellen Eigenschaften erkennen, um den jeweiligen Ort weiterdenken und -bauen zu können.

      Unser Blick wendet sich im Sommersemester nach Prag, wo ein Stadthaus mit multifunktionaler Nutzung entwickelt werden soll.

      Konstruktiv besteht die Aufgabe darin, den Entwurf und dessen Detaillierung so zu entwickeln, dass sowohl eine funktionale Umnutzung, als auch ein späterer Abbau mit einer maximalen Wiederverwendung der Bauteile stattfinden könnte.

      Bei einem innerstädtischen Haus erlangt das Gesicht des Hauses, die Fassade, eine große Bedeutung, denn genau diese wird im Kontext des Ortes als erstes wahrgenommen. Wir werden uns deshalb über das gesamte Semester mit der Fassadenstruktur, den Materialien, der Eigenständigkeit der Fassade und deren städtebaulicher Wirkung beschäftigen.

    • Continue:Berlin

      BA W23

      3. Kernmodul — bachelor — winter 2023

      In diesem Wintersemester werden wir uns mehreren drängenden Themen unserer Zeit stellen und gemeinsam daran arbeiten, darauf angemessene entwurfliche Antworten zu finden. Zum einen wird es um nachhaltige Themen des Bauens selbst gehen. Wir werden uns mit der Endlichkeit von Ressourcen, der Zerstörung von Boden und der in Verbindung mit der Bauindustrie zuspitzenden Klimakrise widmen und diskutieren, welche Lösungsansätze es gibt. Wir wollen herausfinden, welches Potenzial bestehende innerstädtische Strukturen haben. Statt Abriss und Neubau setzen wir auf Umnutzung und Weiterbau. Wir werden untersuchen, welche Bauweisen in diesem Kontext einen sinnvollen Beitrag leisten können.
      Doch wäre es zu kurz gegriffen, uns auf rein bauliche Fragestellungen zurück zu ziehen. Uns interessiert ebenso der sozial-gesellschaftliche Kontext, in dem Architektur entsteht. Ökologische und soziale Nachhaltigkeit greifen ineinander und dürfen nicht isoliert voneinander betrachtet werden. Daher wollen wir uns nicht nur damit beschäftigen, wie die gebaute Umwelt gestaltet werden kann, sondern auch, für wen. Die Stadt ist ein Ort, an dem viele unterschiedliche Lebensmodelle koexistieren und interagieren. Einigen Menschen geht es gut, andere brauchen Hilfe.

      Konkret werden wir uns in Berlins City West mit dem Entwicklungspotenzial eines Parkhauses auseinandersetzen. Auf einem zentral gelegenen, aber bis dato untergenutzten Eckgrundstück soll durch Um- und Weiterbau ein Ort geschaffen werden, der als als Hauptfunktion als eine besondere Form des temporären Wohnens einen Schutzraum für Frauen mit Kindern bietet, die aus den verschiedensten Gründen auf Hilfe unterstützender Sozialstruktur angewiesen sind. Daneben wird es eine Kinderbetreuung, solidarische Küche und Essensausgabe geben. Teile des Parkdecks sollen dafür genutzt werden, gemeinschaftlich Nahrungsmittel zu erzeugen.

    • Update:Berlin

      MA W23

      Projektmodul — master — winter 2023

      Jeder Entwurf beginnt mit einem Kontext: Gesellschaftlich, kulturell, geschichtlich – aber auch baulich. Alle Eingriffe verhalten sich zu diesem Kontext. Um einen Ort weiterbauen zu können ist es also erforderlich, das Bestehende zu kontextualisieren.
      Unser Blick wendet sich im Wintersemester nach Berlin. Diese Metropole wurde wie kaum eine andere in ihrer baulichen Substanz durch die Leitbilder der aufeinander folgenden Epochen geprägt. Jede Zeit versuchte, der Stadt ihren Stempel aufzudrücken. Daraus resultiert heute ein dichtes Patchwork von Gebäuden und Stadträumen, die sich nicht nur in ihrem Alter unterscheiden, sondern jeweils auch Ausdruck der Ideologien ihrer Zeit sind.
      Exemplarisch für die Zeit des grenzenlosen Fortschrittsglaubens der 1960er Jahre ist die städtebauliche Entwicklung des wirtschaftliche Zentrum Westberlins im Bereich um die Gedächtniskirche. Unser Grundstück liegt prominent an einer damals dem Paradigma der autogerechten Stadt folgenden, neu angelegten Autoschneise. Darauf markiert das zwischen 1964-1967 von Werner Düttmann, Karlheinz Fischer und Klaus Bergner entworfene Bürogebäude An der Urania 4-10 den Eingang zur City West. 
Die Abkehr von der Dominanz des Autos und die Rückbesinnung auf das Leitbild der durch klare Raumkanten geformten Straßenräume führte zu einem 2018 initiierten Werkstattverfahren. Dessen Ergebnis sah vor, das Straßenprofil zu schärfen, indem Bebauung und Grünstreifen neu gefasst werden. Das Bürogebäude mit seinen markanten Rücksprüngen sollte abgerissen und durch einen eckbetonten Neubau ersetzt werden. Seitdem überschlugen sich die Ereignisse. Mit dem Rückbau des Gebäudes wurde gerade begonnen. Dann forderte in der 97. Sitzung des Baukollegiums Berlin am 03.07.2023 kürzlich das Architekturkollektiv urban fragment observatory (UFOUFO), das Bürogebäude An der Urania 4-10 als besonders erhaltenswerte Bausubstanz einzustufen, den Abriss zu stoppen und stattdessen eine Machbarkeitsstudie für die Anpassung der städtebaulichen Neuordnung des Kreuzungsbereichs unter Erhalt der Bestandsstruktur zu empfehlen. Abermals ein Paradigmenwechsel.
      Wir interessieren uns aus einem weiteren Grund für das Gebäude: Aufgrund der Klimakrise ist es zunehmend notwendig, Bestehendes zu wahren und durch bauliche Veränderungen für die Aufnahme neuer Programme weiterzuentwickeln. Daher wollen wir in diesem Semester das Potenzial einer baulichen Umstrukturierung und Ergänzung des Gebäudes untersuchen und so die Geschichte eines bedeutenden Bausteins der City West fortschreiben.

    • Update:Bruessel

      BA+MA S23

      5. Kernmodul | Projektmodul — bachelor + master — sommer 2023

      Jeder Entwurf beginnt mit einem Kontext - gesellschaftlich, kulturell, geschichtlich aber auch baulich. Jeder Eingriff verhält sich auf die eine oder andere Weise zu diesem Kontext. Architekt*innen müssen seine spezifischen kontextuellen Eigenschaften erkennen, um den jeweiligen Ort weiterdenken und -bauen zu können.
      Unser Blick wendet sich im Sommersemester nach Brüssel. Die Region Brüssel-Hauptstadt zählt ca. 1,21 Millionen Einwohner und weist mit 7.441 Einwohnern pro Quadratkilometer eine für Europa sehr hohe Bevölkerungsdichte auf. Durch die Ansiedlung internationaler Institutionen wie der Europäischen Union, der NATO sowie den damit einhergehenden Lobbyverbänden, Hotels und Messezentren wurde aus Brüssel nach dem Zweiten Weltkrieg eine Stadt von internationalem Rang. Deren räumlicher und visueller Eindruck konnte nur schwer mit dem plötzlich gewonnenen Status mithalten. In Folge dessen wurde Brüssel baulich und vor allem verkehrsplanerisch großen Veränderungen unterzogen.
      In den letzten Jahren kann man eine weitere Entwicklung verfolgen. Die sog. Contrats de Quartiers durables versuchen durch bauliche Veränderungen sowie soziale Initiativen eine qualitative Aufwertung bestehender Quartiere. Zudem gibt es ambitionierte Projekte, welche die in der zweiten Hälfte des 20. Jahrhunderts entstandenen Büroquartiere aus ihrer Monofunktion lösen und hybridere Nutzungsformen ermöglichen wollen - Brüssel wird einem Update unterzogen.
      Wir wollen in diesem Semester die bauliche Fortführung bestehender Situationen - das Weiterbauen - in den Fokus rücken, Bestehendes untersuchen und weiterentwickeln.

      • Zeliah Ari + Elisabeth Schaad

    • Schieferpfade

      MA W22

      Entwurf im Projektmodul — master — winter 2022

      Eine sattgrüne Landschaft, darin eingebettet schwarzblaue Dörfer – Ruhe. Der lebendige Himmel spiegelt sich im tiefgrünen See, vor der Kulisse einer blauschimmernden Steilwand. In diese eingeschoben, eine grau verwitterte Holzfassade, auf der Felskante aufliegend ein seltsam hutartiges Dach – schuppig, blauschwarz glänzend. Davor leuchtend ein schlanker hoher Backsteinzylinder, mit dem Fuße im Wasser stehend, sich kontrastreich darin spiegelnd – auf der Felswand ein flüchtiges rotes Glimmen. Die Göpelförderschachtanlage inmitten des technischen Denkmals „Historischer Schieferbergbau Lehesten“. Eine kraftvolle Szenerie die erahnen lässt, dass es hier nicht immer so ruhig war. Seit dem 14. Jahrhundert bis 1999 wurde hier „das blaue Gold“ abgebaut, welches der Erscheinung dieser Region ihre geheimnisvolle Anmutung verleiht und als Dach- und Wandbekleidung den schnell wechselnden Wetterlagen seit Jahrhunderten zu trotzen vermag. Das montanhistorische Industrieensemble um den Kießlichbruch in Lehesten ist nicht nur technisches Denkmal, Informationsstätte, Naherholungsziel und Ausbildungsort der ältesten deutschen Dachdecker-Meisterschule, es ist ein Ort starker Identität. Das Gelände ist durch die gut erhaltenen eigenwilligen, in Schiefer errichteten Gebäude aus der aktiven Nutzungsphase des Schieferbruchs geprägt. In deren Ergänzung ist ein Neubau als zentraler Anlaufpunkt gewünscht, der sowohl die museale Nutzung stützt, als auch über den „Geopark Schieferland“ informiert. Das Areal des alten Staatsbruches hat sich, mit dem 2006 gefluteten Tagebaubereich, zu einem besonderen Flora und Fauna Habitat entwickelt, das der Naherholung dient und über einen Rundwanderweg erfahren werden kann. In der Zusammenführung von Natur und Technik soll der Standort als Ausflugsziel entwickelt werden. Daher wird das Programm, neben den Bildungsinhalten, um die kulinarische Bewirtung von Gästen ergänzt. Kleine situative Eingriffe entlang des Rundweges stärken die Erzählung, binden zusammen und ergänzen das Angebot als Naherholungsort. Die konstruktive Verwendung des Schiefers, die Auseinandersetzung mit Fragen der Nachhaltigkeit, das Verhältnis von Natur und Technik stehen im Fokus – die Identität und Poetik des Ortes zu erfassen und durch die gestalterischen Entscheidungen zu stützen.

    • Spurensuche

      BA W22

      Entwurf im 3. Kernmodul — bachelor — winter 2022

      Eine sattgrüne Landschaft, darin eingebettet schwarzblaue Dörfer. Der lebendige Himmel spiegelt sich im tiefgrünen See. Über der Wasseroberfläche ein dunkler Schlund – ein beachtliches Schiefergewölbe das tief in eine blauschimmernde schroffe Steilwand führt. In diese eingeschoben, eine grau verwitterte Holzfassade, auf der Felskante aufliegend ein seltsam hutartiges Dach – schuppig, blauschwarz glänzend. Alles Teil der Göpelförderschachtanlage des technischen Denkmals „Historischer Schieferbergbau Lehesten“ und eines besonderen Fauna-Flora-Habitats. Seit dem 14. Jahrhundert bis 1999 wurde hier „das blaue Gold“ abgebaut, jener Schiefer der dieser Region ihre geheimnisvolle Anmutung verleiht und als Dach- und Wandbekleidung den schnell wechselnden Wetterlagen seit Jahrhunderten zu trotzen vermag. Inzwischen finden im Areal des ehemaligen Staatsbruchs, mit dem 2006 gefluteten Tagebaubereich, stark gefährdete und vom Aussterben bedrohte Tier- und Pflanzenarten in dem vielfältigen Lebensraum aus Trockenmauern, Strossen und Stollenmundlöchern sowie angrenzenden Wald- und Wiesenflächen einmalige Rückzugsorte. Ziel ist es, diesen „Mikrokosmos Bergbaufolge“ im Bereich des Kießlichbruchs noch besser zu untersuchen und dessen Besonderheiten an ein interessiertes Publikum zu vermitteln. Eine naturkundliche Hütte am Ufer des gefluteten Tagebaubereichs soll den Forschenden und Freizeitnaturkundlern als Basisstation dienen, ergänzt durch kleinere Stationen entlang des Rundweges. Die konstruktive Verwendung des Schiefers, die Auseinandersetzung mit Fragen der Nachhaltigkeit, das Verhältnis von Natur und Technik, stehen im Fokus – die Identität und Poetik des Ortes zu erfassen und durch die gestalterischen Entscheidungen zu stützen.

    • Transformer

      MA S22

      Entwurf im Projektmodul — master — sommer 2022

      Nachhaltige Gebäude zeichnen sich durch geringe Umweltbelastungen sowie niedrige Lebenszykluskosten aus und sichern eine möglichst lange, bedarfsgesteuerte wie funktionale Nutzungsdauer. Dabei resultiert aus der stetigen Änderung der Lebensweise und Haushaltszusammensetzung, den Wandlungen in der Arbeitswelt oder der demographischen Entwicklung, die Forderung nach adaptiven Gebäudestrukturen, die wahlweise Gewerbe oder Wohnen vorsehen, aber auch eine Mischnutzung in beliebiger zeitlicher Abfolge ermöglichen.

      Im Mittelpunkt des Master-Projekts in diesem Sommersemester steht der architektonische Entwurf eines Wohn- und Arbeitsgebäudes in Leipzig. Während der anvisierten Lebensdauer von mindestens 100 Jahren soll sich dieses Haus jeglichen Nutzungsvariationen und städtischen Entwicklungen mittels einer besonders widerstandsfähigen inneren Gebäudestruktur immer wieder neu anpassen können. Die Zeit wird hierbei zu einem entscheidenden Gestaltungsparameter: Entworfen werden soll für das Unvorhersehbare, die Zukunft. Im Fokus der entwerferischen Arbeit liegen einerseits die besonderen Anforderungen an den Raum (Raumgröße, -struktur, -proportionen), andrerseits eine typologische Studie (Trag-, Erschließungs-, Ausbaustruktur), um herauszufinden, wie verschiedene Funktionen qualitätsvoll aufgenommen und begünstigt werden können.

      Wie generisch und nutzungsoffen darf ein Gebäude sein, um nicht unspezifisch für die Bestimmung und den Ort zu werden? Wie flexibel, prozessoffen und standardisiert die einzelnen Komponenten, wie polyvalent der Raum? Die Untersuchung möglicher Antworten auf diese Fragen wird die prozessuale Entwurfsarbeit im anstehenden Sommersemester maßgeblich bestimmen.

    • Klar zur Wende

      BA W21

      Entwurf im 3. Kernmodul — bachelor — winter 2021

      Im Wintersemester 21/22 wird sich das 3.Kernmodul an unserem Lehrstuhl mit einem Projekt für den Segelverein Turbine Bleiloch beschäftigen, um dem schönen, im Dornröschenschlaf versunkenen Grundstück des Vereins neuen Wind zu geben und Denkanstöße für weitere Planungen zu schaffen.
      Der regionale Kontext ermöglicht eine Beschäftigung mit unserer näheren Umgebung Thüringens. Aktuelle gesellschaftliche Veränderungen üben auf die ländlichen Räume einen hohen Anpassungsdruck aus. Die Qualitäten dieser Räume betrachtend, hinterfragen wir tradierte Bilder des „Ländlichen“ und versuchen, den Segelverein architektonisch in die Gegenwart zu überführen.
      Überlegungen zum nachhaltigen Bauen bilden dabei eine wichtige Grundlage. Wir wollen Fragen nach der Funktionalität ebenso erörtern wie Betrachtungen anstellen zum Lebenszyklus, zum Materialeinsatz und sinnvollen Konstruktionsmethoden.

    • Laboratorium Lignum

      MA S21

      Entwurf im Projektmodul — master — sommer 2021

      Das Bauen mit Holz ist im Zuge einer breiten Debatte zum Klimawandel gegenwärtig dabei, zu einem zentralen Thema unter Architekten und innerhalb der gesamten Branche zu werden. War noch bis vor wenigen Jahren Beton der Liebling der Architekten, so nimmt die Verwendung von Holz als Werkstoff immer mehr an Fahrt auf. Zwar sprechen die Zahlen der Bauindustrie immer noch eine Sprache der Zementwerke, aber im Diskurs über nachhaltiges Bauen hat Holz inzwischen seinen Konkurrenten aus Erz und Mineralien, ganz zu schweigen von erdölbasierten Produkten, den Rang abgelaufen. 
Die bislang eher als Sonderlinge betrachteten Architekten, welche sich dem Material Holz mit seinen konstruktiven, ästhetischen und kulturellen Qualitäten schon früh verpflichtet fühlten, werden nun zu Vorreitern einer alternativen Architektur, die für sich in Anspruch nehmen kann nachhaltiger zu sein, als der Status quo des Bauens aus Beton und Stahl. 
Dabei war Holz in der Architektur nie verschwunden. Als Material für den Innenausbau stand es zumindest bei Architekten immer hoch im Kurs. Allerdings fällt das konstruktive Bauen mit Holz aufgrund seiner Schwächen im Brandschutz, Schallschutz und Feuchteschutz sowie der durch das natürliche Material bedingten Bauteilabmessungen ungleich schwerer. Im Gegensatz zum Alleskönner Stahlbeton muss mit Holz wahrhaftig konstruiert werden und die Architekt*in muss sich im Umgang mit Holz viel stärker als Generalist der Disziplinen beweisen.



      Mit dem Projekt für ein Forschungszentrum zum Bauen mit Holz, einem Laboratorium Lignum, wollen wir dem neuen Stellenwert des Materials Rechnung tragen. Wir suchen nach einem Ort, an dem das Praktische mit dem Theoretischen in einer nachhaltigen und kulturell verankerten Architektur vermittelt werden kann. Hier soll rund um das Holz geforscht, gelehrt und gelernt werden. Natürlich soll dieser Ort selbst aus Holz entstehen. Möglicherweise aus Bäumen der Umgebung, vom Sägewerk nebenan geschnitten und von Unternehmen aus der Region gebaut.
Das kleine Städtchen Tannroda wird uns als Entwurfsort dienen. Es liegt unweit von Weimar zwischen Bad Berka und Kranichfeld im Ilmtal. Vor Ort befindet sich ein Sägewerk und drumherum steht viel Wald. Auf einer Ilminsel, auf welcher vorher eine Papierfabrik beheimatet war, soll sich das Laboratorium Lignum entfalten können.


      • Lennart Weski + Marco Luca Reusch

      • Anna Dorothea Velde

      • Luisa Krämer

    • Klangkollektion

      BA W20

      Entwurf im 3. Kernmodul — bachelor — winter 2020

      Rückseitig des ehemaligen Fürstenhauses, heute Hauptgebäude der Hochschule für Musik „Franz Liszt“ (HfM), in direkter Nachbarschaft des dem Parkeingang gegenüberstehenden Hauses der Frau von Stein, liegt in Verlängerung des Oppelschen Gartens mit dem Oppelschen Pavillon, dereinst als barocker Spielort erdacht, ein kleiner Parkplatz. An dessen Stelle ist angedacht, das musische und gesellige Umfeld um einen Ort zu bereichern, an dem die kleine bislang verborgene Instrumentensammlung des Hochschularchivs zur Schau gebracht werden soll. Ein Teil der Präsentationsform dieser Instrumente-Wunderkammer ist das Spiel auf den Sammlungsstücken, welches eine entsprechende räumliche Berücksichtigung innerhalb des Präsentationsraums erfahren möchte, der sich in dieser Funktion möglicherweise auch in den Stadtraum erweitert.
      Das Haus nimmt zudem die Instrumentenausleihe der HfM auf, deren Fundus eine Vielzahl historischer und zeitgenössischer Instrumente umfasst, deren Lagerung und Ausgabe ebenfalls zu integrieren ist.
      Neben der Entwicklung einer innenräumlichen Struktur befasst sich der Entwurf besonders mit dem Thema der Schwellenräume, dem Gefüge zwischen Stadtraum, Gebäude und Park. Ein besonderer Behandlungsschwerpunkt wird auf der Fassade liegen, begleitet durch die intensive Auseinandersetzung mit den Materialien Putz und Naturstein.

      • Tillmann Gebauer + Mona Luise Rauch

      • Xavier Simon Jahn + Florian Meißner

      • Marie Sophie Langholz + Lennart Jonathan Trisl

    • Klangkörper

      MA W20

      Entwurf im Projektmodul — master — winter 2020

      Im Zentrum von Weimar, auf dem Zeughofareal, östlich des geplanten Zubaus für das Haus der Demokratie, vis à vis des Palais und des Platzes mit dem Donndorf-Brunnen, soll ein Zentrum für experimentelle Klangkunst entstehen. Das Haus dient als Veranstaltungsort und Experimentierraum für experimentelle Musik und Medienkunst, und verschafft diesen Kunstrichtungen eine Bühne im kulturellen Zentrum der Stadt. Es gilt dabei neue Ausführungsformen zu suchen, da die Musik aus Lautsprechern kommt und keiner im klassischen Konzertsaal existierenden Bühne bedarf. Der Raum ist Produktionsstätte und Klangkörper gleichermaßen. Ergänzt wird das Raumprogramm durch Ausstellungsflächen, Studios und einem Ort zum Dialog.
      Neben der Entwicklung einer innenräumlichen Struktur befasst sich der Entwurf besonders mit dem Thema der Fassaden und den Schwellenräumen zwischen Stadtraum und Gebäude.

      • Noha Ramadan + Jonas Maczioschek

      • Moritz Bickel + Maximilian Kindermann

      • Janis Nicolai Gamisch + Andreas Erich Heinrich Stock

    • 0,1 Milligramm Eisen

      BA W19

      Entwurf im 3. Kernmodul — bachelor — winter 2019

      Begibt man sich der Tage reisend durch die Thüringer Landschaft, so begegnen uns aller Orten, ob wegbegleitend oder lose in die Fläche gehend, üppig tragende Obstgehölze. Näher betrachtet, erschließt sich ein Reichtum an Formen, Farben und
      Mustern der ‚wilden‘ Früchte, deren Hölzer schon längst keine Pflege mehr zu Teil wurde. Was geschieht mit all dieser Pracht, außer, dass die Äpfel und Birnen, überreif herabfallend, zertreten sich ihrer Vergänglichkeit hingeben?
      Dieser Frage wollen wir uns im kommenden Wintersemester widmen, der Ressource ‚Streuobst‘ und ihrer mannigfaltigen Möglichkeit der Nutzbarmachung. So ist neben Vordergründigem, wie Einlagerung und Versaftung, die Veredelung aber auch die
      Sekundärnutzung des Tresters Wert zu schätzen..
      Verbleiben wir dem Lokalen und Nachhaltigen gedanklich verbunden, so assoziieren sich weitere, anverwandte Szenarien:
      Nachhaltiger Konsum (Hoflanden), Entschleunigung (gastronomisches Angebot) oder Wissensvermittlung (Schauraum alter Apfelsorten). Eine Verortung am Radwanderweg der Ilm erweitert das Spektrum im Raumprogramm. Der Ernte und ihrer Facetten ein Haus gebend, ist aus der Perspektive der Suffizienz, ein überschaubares Raumprogramm architektonisch zu gestalten. Aspekte der Nachhaltigkeit sollen ebenso Eingang finden, wie die Betrachtung lokaler Bauweisen und die Einbettung in die Landschaft.

      • Benjamin Rettberg + Valentin Keller

      • Benedikt Radloff + Hannah Essigkrug

      • Vincent Mank + Diego Kühle-Ramos

    • 37,5 Volumenprozent

      MA W19

      Entwurf im Projektmodul — master — winter 2019

      Die warme Sommersonne hat die zarten Frühlingsblüten von Baum und Strauch zu herrlich duftenden Früchten herangereift, die üppig und farbenprächtig die Flur verzieren.
      Der wandernde Betrachter erfreut sich gern des Anblicks und des unmittelbaren Genusses. Doch mit der ersten frischen Briese, als Bote des nahenden Herbstes, drängt sich ihm der Gedanke an die jährlich wiederkehrende Vergänglichkeit auf. Ja ließe sich doch eine Essenz aus diesen Dingen ziehen und ein Destillat zur sinnlichen Erkenntnis vom Geist des Gewachsenen gewinnen, das mit süßen fruchtigen Aromen durch den kalten Winter hinweg zu erfreuen vermag. Dies gelingt mit Fleiß und Sorgfalt es muss gesammelt, gewaschen, gemaischt, gebrannt, gefüllt und schließlich auch gekostet werden. Das alles bekommt einen Ort und einen Raum, möchte umschlossen und überdacht sein. Das Wissen über die Gewinnung der geistreichen Essenz wird hier gesammelt, geteilt und ihr Geist weitergegeben. Der sinnierende Wanderer, ob zu Fuß oder mit dem Rad, wird hier zudem mit einer weichen Schlafstatt und kulinarischen Köstlichkeiten für sein Wohl bedacht.
      Skizziert man einen solchen Raum ins Material hinein, kommt der anfängliche Gedanke des steten Gedeihens und Vergehens zurück in den Sinn und es wird einem bewusst, wie nachhaltig seit Ewigkeiten schon aus Anorganischem Organisches erwächst und wieder zerfällt. Vom Mikrokosmos sich dies zu Herzen nehmend könnte auch im Makrokosmos eine Architektur erwachsen die sich die Nachhaltigkeit in Strategie und Material zu eigen macht.

      • Nils Schroeder + Tobias Paro

      • Annika Liesen + Laura Gärtner

      • Lewis Horkulak + Lucas Hölscher

    • Maison de la Paix et des Religions

      BA+MA S19

      Entwurf im 5. Kernmodul BA — bachelor + master — sommer 2019

      Fußend auf dem Recherche-Seminar im Wintersemester 18+19, in welchem der gesellschaftliche und architektonische Kontext der Zentralafrikanischen Republik untersucht wurde, stellt sich im Sommersemester die herausfordernde Aufgabe, Lösungsansätze für eine Architektur zu entwickeln, die helfen soll, einen Prozess des Ausgleichens, des Verständnisses und der Akzeptanz zu unterstützen. Während sich der Bachelor-Entwurf im 5. KM mit einem möglichen Ansatz interreligiöser Architektur, als räumliche Unterstützung für konfliktlösende Mechanismen, beschäftigen wird, zielt der Fokus im Master-Entwurf auf Räume des Dialoges jenseits religiöser Konnotation und Praxis. In Zusammenhang mit dem Seminar Typologien gemeinschaftsbildender Räume werden historische Vorläufer und Vorbilder auf ihre Adaptionsfähigkeit an den spezifischen Kontext Zentralafrikas geprüft.

      Parallel zum Master-Entwurf Maison de Paix, welcher sich mit Räumen des Dialoges beschäftigt, wird sich der Entwurfskurs im 5. Kernmodul typologischen und räumlichen Ansätzen interreligiöser Architektur widmen. Ziel ist es, eine mögliche Rolle der Architektur in der Konfliktbewältigung religiöser Auseinandersetzungen zu entwickeln und diese in einen architektonischen Ausdruck zu überführen. Der gesellschaftliche Ausgangspunkt ist der schwelende Bürgerkrieg in der Zentralafrikanischen Republik.

      • Anna Kopacsi + Julia Fries

      • Chrysa Gerakaki + Lisa Rottner

      • Simon Ottrand + Anton Sieber

    • Schauhaus Bauhaus

      BA W18

      Entwurf im 3. Kernmodul — bachelor — winter 2018

      Am Ende eines jeden Sommersemesters verwandelt sich der Campus der Bauhaus-Universität in eine große Ausstellung aller Fakultäten: Die Universität präsentiert die kreative Arbeit von Studierenden und Mitarbeitenden der Öffentlichkeit. Während des übrigen Jahres bekommen die Besucher, Studierenden und Mitarbeitenden der Universität jedoch keinen oder nur einen sehr spärlichen Eindruck von der geleisteten Arbeit. Diesem Umstand soll mit einem fakultätsübergreifenden Ausstellungsraum begegnet werden. Es soll ein Raum entstehen, der ein Schauhaus für das Bauhaus werden kann.
      Während des Bauhaus-Semesters werden wir in Kooperation mit den Professoren Jana Gunstheimer und Björn Dahlem (Fakultät Kunst und Gestaltung) zu Lösungen für das Ausstellen an unserer Universität forschen. Schwerpunkte werden dabei die Auseinandersetzung mit den Praktiken des Ausstellens und der Umgang mit dem Ort sein.

      • Adina Königstein + Louis Ostermayer

      • Fanny Weil + David Herrmann

      • Sarah Silbernagel + Florian Meeh

    • KreativKondensator

      BA+MA S18

      Entwurf im 5. Semester — bachelor + master — sommer 2018

      Stellen wir uns einen Ort vor, an dem kreative Köpfe zusammen kommen und beginnen ihre Ideen umzusetzen. Ihnen wird eine Struktur gegeben, in welcher sie ihre Bedürfnisse nach Arbeitsraum, Austausch und Werkzeugen befriedigt sehen. Ein Ort also, in dem Kreativität als Kondensat die Räume durchwebt, ein KREATIVKONDENSATOR.
      Wie würde wohl ein solcher Ort aussehen? Dieser Frage möchten wir in diesem Entwurf nachspüren. Bevor sich allerdings eine konkrete Idee von Architektur imaginieren lässt, müssen wir uns die Bedingungen, unter denen wir Handeln werden, bewusst machen und es stellen sich die Fragen nach dem Was, dem Wer und dem Wie.
      Was bedeutet Kreativarbeit? Wer sind Kreativarbeitende? Und wie setzen wir eine Architektur für Kreativarbeitende ins Werk?
      Um diese Fragen zu beantworten, werden wir auf der Exkursion im Gesprächsworkshop ARBEITSWELTEN mit Protagonisten der Kreativwirtschaft in Kontakt kommen und Gelegenheit haben zu erfahren, was Kreativarbeit an Bedürfnissen formulieren kann.
      Im Begleitseminar TYPUS UND KONSTRUKTION werden wir uns mit Formen „alter“ Arbeit und deren architektonischer Hardware beschäftigen, mit dem Ziel, Auskunft über Typologien der Arbeitsarchitektur und deren spezifischer Konstruktion zu erhalten.
      Das so gesammelte Wissen soll durch einen analogisierenden Prozess im Entwurf zu einer neuen Form gerinnen. Es ergeben sich dabei die Herausforderungen einerseits, für eine spezifische Funktion eine flexible Struktur zu finden, die auch bei einer veränderten Bedürfnislage angepasst werden kann und anderseits einen architektonischen Ausdruck zu finden, welcher Identitätsstiftend für das Gebäude ist.

      • Barbara Herschel + Kaspar Jamme

      • Luise Banz + Patrick Henerici

      • Luise Daut + Annika Eheim

    • Von Vogels Wegen

      BA W17

      Entwurf im 3. Kernmodul — bachelor — winter 2017

      Am Nordhang des Kyffhäusers, einem Mittelgebirge an der Nordgrenze Thüringens, hat sich im Umfeld des einstmals zum Hochwasserschutz angelegten Helmestausees ein einmaliges Biotop aus Feuchtgebieten, Auen und naturnahen Binnensalzstellen entwickelt, das zahlreichen seltenen Pflanzen und Vogelarten einen Lebensraum bietet, der viele interessierte Besucher und begeisterte Ornithologen anzieht.
      In dem ausgedehnten Vogelschutzgebiet rings um den Helmestausee, welches Teil des Naturparks Kyffhäuser ist, ereignet sich im Herbst alljährlich ein besonderes Schauspiel der Natur, wenn sich an der Nordseite des Naturparks Kyffhäuser zehntausende Kraniche in der Goldenen Aue versammeln. Auf ihrer Rast zwischen ihren Brutplätzen im skandinavischen Norden und ihren mediterranen und nordafrikanischen Winterquartieren im Süden, werden die Feuchtgebiete am Stausee zum temporären Lebensraum der Kraniche. Neben einem umfangreichen Nahrungsangebot finden sie ausreichend Schutz auf dem abgelassenen Stausee, um Kräfte für ihren Weiterflug zu sammeln.
      Des Weiteren ziehen weitläufige Höhlensysteme unter den Hängen des Kyffhäusers Geologen an. Die Wissenschaftler erhoffen sich aufschlussreiche Erkenntnisse über Entstehung und Zukunft der Landschaft um den Kyffhäuser. Dafür werden regelmäßig Tauchgänge in den wassergefüllten Höhlen vorgenommen.
      Auf dem Gehöft Numburg befindet sich Heute eine Naturschutzstation.
      Die Gebäude beherbergen neben den temporär anwesenden Wissenschaftlern auch diverse Arten von Fledermäusen und Brutplätze für einheimische Vögel. Der Gutshof steht mitten im Naturschutzgebiet in direkter Nähe zum Stausee und bietet sehr gute Bedingungen zur Vogelbeobachtung. Nur wenige Meter entfernt liegt darüber hinaus der Einstieg in das Höhlensystem des Kyffhäusers.
      Die baulichen Anlagen der Numburg sind inzwischen in die Jahre gekommen, was uns die Chance eröffnet, einen Ersatzneubau als Vogelbeobachtungs- und Naturschutzstation als Holzbau zu entwerfen.
      Neben der eingehenden Beschäftigung mit dem Ort, dessen Potentialen als Inspiration für den Entwurf, und den Anforderungen an eine solche Naturschutz-Station, sowohl in Funktion als auch Gestalt, wird eine intensive Auseinandersetzung mit dem Baustoff Holz und seinen konstruktiven Möglichkeiten erfolgen. Auch das Aufspüren des Poetischen im Zusammendenken von ästhetischem Ausdruck, Funktionalität, Material und Konstruktion stehen im Fokus der Auseinandersetzung.

      • Carolina von Hammerstein + Paul Knopf

      • Hannah Meisel + Maximilian Lange

      • Grischa Schmidt + Jan Hüttmann

    • Case Study Ethiopia

      BA+MA S17

      Entwurf im 5. Semester — bachelor + master — sommer 2017

      Zwei Drittel der äthiopischen Bevölkerung wohnen auf dem Land. Dort finden sie derzeit weder ausreichend Arbeit noch Bildung. Um einem Abwandern der Jugend in die Slums der Städte zuvorzukommen, muss die soziale Infrastruktur im ländlichen Raum verbessert werden.
      Wir beschäftigen uns mit Interventionen an Orten, die in der Lage sind, den ländlichen Raum zu stärken: Märkte, Gemeinschaftshäuser, Kindergärten und Schulen, öffentliche Plätze...
      Wir untersuchen und entwickeln fallstudienartig an konkreten Orten Gebäude-typologien, die in der Lage sind, diese Aufgaben zu erfüllen und zukünftig auf neue Anforderungen reagieren zu können. Parallel zum Entwurf liefert als integraler Bestandteil das Seminar „Field Study – Bauen in Afrika“ Informationen über die gesellschaftlichen und architektonischen Rahmenbedingungen für die Entwurfsarbeit.
      Das Entwurfsmodul unterstützt das Projekt In³ – Integrated Infrastructure – A Planning Strategy for Sustainable and Resilient Spatial Structures in Emerging Cities in Sub-Saharan Africa.

      Die Arbeit in diesem Entwurfsseminar steht im Spannungsfeld von eigenem Entwurf und kollektivem Wissenszuwachs. Die Struktur ist so angelegt, dass sich die individuelle Entwurfsarbeit aus den Ergebnissen der gemeinschaftlichen Forschung speist. Hierzu wird die Aufgabe in mehrere thematische Felder gegliedert, die zunächst getrennt betrachtet werden. Die Felder werden so gewählt, dass sie eine möglichst umfassende Erkundung erlauben. In einem zweiten Schritt lassen sich die Erkenntnisse der Forschung mosaikartig zu einem Gesamtbild zusammensetzen.
      Die Entwürfe werden eine mehrfache Ausrichtung besitzen: zunächst konkret für einen spezifischen Ort konzipiert, wird sich ihre Stärke danach bemessen, inwiefern sie in der Lage sind, auch in anderen Situationen eingesetzt zu werden. Es wird daher um konstante und variable Bestandteile gehen, die in ihrer Kombination in der Lage sind, das Spezifische mit dem Allgemeinen zu verbinden.
      Die Aufgaben werden in einer Kombination aus Gruppen- und Einzelbeiträgen bearbeitet. Dabei steht im Vordergrund, in der Summe der einzelnen Beiträge eine möglichst große Vielfalt zu erzeugen. Dies setzt voraus, dass jeder Beitrag für sich spezifisch und wesentlich unterschiedlich von den anderen Beiträgen ist.
      Als Forscherteam werden wir gemeinsam die Bandbreite der Möglichkeiten ausloten. Wir werden die einzelnen Beiträge in Beziehungen zueinander setzen und auf diese Weise vergleichend in der Lage sein, ein möglichst großes Potenzial zu entwickeln.
      Die Arbeit der einzelnen Phasen wird kontinuierlich von den Teilnehmern dokumentiert. Am Ende des Semesters wird ein Reader vorliegen, der sich aus den Einzelbeiträgen zusammensetzt und diese fallstudienartig zusammenfasst.

      • Alexandra Bast + Sölvie Lederer

      • Tim Maertens + Julius Morschek

      • Jonathan Bruegmann + Simon Brendel

    • Eine Sammlung

      BA+MA W16

      Entwurf im 5. Kernmodul — bachelor + master — winter 2016

      Auf dem Grundstück im Zentrum Berlins mit Blick auf die Spree soll ein Ausstellungshaus für eine private Sammlung entstehen. Vorgesehen ist eine Nutzfläche von rund 5.000 qm, die sich in verschiedene Ausstellungsflächen, Veranstaltungsräume und Verwaltung sowie Depots unterteilt. Das Grundstück soll – seiner zentralen Lage entsprechend - als attraktiver öffentlicher Raum einen wesentlichen Impuls für die Stadt geben, z.B. durch Veranstaltungen der Sammlung, die dort temporär stattfinden werden.
      Es gibt Sammlungen der unterschiedlichsten Art. Briefmarken, Bilder, Skulpturen, Uhren, Autos, Schuhe, Schmetterlinge ...
      Jeder sammelt etwas anderes und meistens mit viel Leidenschaft. Überlegen Sie sich eine Sammlung, für die Sie ein Haus entwerfen wollen. Entwerfen Sie dafür ein oder mehrere Gebäude, die nicht nur das Raumprogramm erfüllen, sondern die sich auf spezifische Weise in einen thematischen Kontext einschreiben. Diesen bestimmen Sie selbst. Die Thematisierung schreibt den Entwurf in einen Kontext ein, der sich nicht auf Raumprogramm und Ortsspezifik beschränkt, sondern Verbindungen knüpft zu Themen, die außerhalb des Singulären liegen: Morphologie, Typus, Rhetorik, Prozess, Gebrauch, Modell, Repräsentation, Komplexität, Identität, ...
      Im Entwurfsprojekt werden thematisches Denken und Entwerfen erprobt und entwickelt sowie mit den konkreten Anforderungen der Situation kontrastiert. Aus dem Denken über Architektur wird Architektur als Denkform.

      • Johanna Brücker + Frederik Kronenbitter

      • Fabian Liehm + Eric Dietze

      • Amelie Gschwind + Klemens Lorenz

    • Vis à Vis

      BA W16

      Entwurf im 3. Kernmodul — bachelor — winter 2016

      Die Havellandschaft nördlich von Potsdam stellt eine einzigartige Kulturlandschaft dar. Hier sind wir mit Peter Josef Lenné und Karl Friedrich Schinkel in bester Gesellschaft. In diesem Spannungsfeld zwischen Natur und Kultur wollen wir uns einer kleinen Bauaufgabe widmen, die diese Auseinandersetzung räumlich fortsetzt.
      Ausgehend vom Backstein als obligatorischen Material sind (dualistische) Gedankenpaare zu finden, die sich auf verschiedenen Ebenen dieser Grenzsituation widmen: baulich aufeinander bezogen, ist jedes der beiden Objekte auch dem eigenen Standort verpflichtet. In Gruppen zu Zweit sind die spezifischen Charakteristiken der Einzelbegriffe zu diskutieren und in einen konkreten architektonischen Ausdruck zu bringen, ohne die Verbindung zum thematischen Gegenüber zu lösen.
      Neben der begrifflichen Auseinandersetzung sind für die Architekturen auch funktionale Gegebenheiten vorgesehen: Hier soll das Ausstellen im Vordergrund stehen aber auch dem Ankommen und Verweilen ist Gewichtung bei zu messen. Ein formuliertes Raumprogramm kann erweitert und angepasst werden.
      Eine, dem Entwurf vorgeschaltete, Fingerübung vermittelt allgemeine gestalterische Grundlagen sowie in Zeichnung als auch Modell und stimmt thematisch auf die kommenden Semesterinhalte ein.

      • Milan Loebner + Kaspar Jamme

      • Anna Kuschick + Valentin K. A. Dürselen

      • Barbara Herschel + Jan Niklas Klein

  • Seminar

    • Urban Villages in der Megalopolis von Shenzhen

      MA W25

      Seminar — master — winter 2025

      Das Seminar dient als Vorbereitung auf den Entwurf im Sommersemester 2026 und beschäftigt sich intensiv mit der Megametropole Shenzhen und dem Pearl-River-Delta, dem weltweit größten urbanisierten Ballungsraum. Die Region wächst weiterhin dynamisch durch eine sehr hohe Zuwanderungsrate. Seminar und Entwurf entstehen in Kooperation mit der Architekturfakultät der Universität Shenzhen.

      Zur Vorbereitung auf Exkursion und Entwurf analysieren wir die Region aus verschiedenen Perspektiven:

      Städtebau und Architektur: Das Pearl River Delta umfasst neun Städte – darunter Shenzhen – mit über 78 Millionen Einwohnern. Shenzhen verzeichnete 2021 ein enormes Wirtschaftswachstum und zeichnet sich durch eine kompakte, hochverdichtete Stadtentwicklung aus. Die Region ist ein globales Zentrum für Industrie und Dienstleistungen. Extrem dichte urbane Räume sind typisch, ebenso wie verlassene Fabriken und über 100 städtische Dörfer, die hinter den neu erbauten Hochhäusern verborgen sind. Die traditionelle Idee eines Stadtzentrums verschwimmt, da es kein einziges Zentrum mehr gibt, wie wir es beispielsweise aus der europäischen Stadtplanung kennen. Die städtische Struktur entspricht nicht dem Gewohnten und entwickelt sich auf vielfältige Weise weiter, sodass mehrere Zentren entstehen.

      Kultur: Die gesellschaftliche Struktur ist sehr vielfältig und von Zuwanderung geprägt. Shenzhen gilt als „Migrantenstadt“, in der Menschen aus ganz China leben und arbeiten, was ein lebendiges, pluralistisches Stadtleben zur Folge hat.

      Politische Rahmenbedingungen: Die Urbanisierung im Delta wird durch ambitionierte Regierungspläne gesteuert, wie den aktuellen 14. Fünfjahresplan für integrierte urbane Entwicklung und Klimaschutz. Regierungen und Städte stehen vor der Herausforderung, das Wachstum ressourcenschonend zu bewältigen, die industrielle Transformation zu nachhaltigen Branchen zu fördern und die regionale Kooperation zu stärken.

      Der Austausch mit der Partnerfakultät in Shenzhen und die Recherchen im Seminar helfen dabei, ein fundiertes Verständnis für die Herausforderungen und Perspektiven der urbanen Entwicklung im Pearl-River-Delta zu gewinnen und bilden die Grundlage für den Einstieg in den Entwurf sowie die Vertiefung der Seminarinhalte im Sommersemester.

    • Gestalt Atmosphäre Konstruktion

      BA W25

      Seminar — bachelor — winter 2025

      Im dritten Semester legen wir im entwurfsbegleitenden Seminar besonderen Wert darauf, Möglichkeiten aufzuzeigen – sowohl in der Gestaltung von Bauten als auch in deren Konstruktion. Für uns besteht wahres Lernen darin, eigenständig zu recherchieren, Lösungswege zu entwickeln und zu erproben, statt fremden Überzeugungen nachzulaufen. Wir rücken das Erkennen von Potenzialen und Optionen in den Vordergrund und fördern individuell-kreatives Arbeiten durch Nachahmen und Verfremden als bewusste Methoden des Lernprozesses und damit der Entwicklung eigener Ausdrucksformen. Anhand ausgewähler Bauten und Projekte werden Entwurfs- und Konstruktions- bzw. Materialentscheidungen erläutert, danach folgt die Auswahl und Adaption von Prinzipien und Elementen für den eigenen Entwurf.

    • Das schöne Detail

      MA W25

      Seminar — master — winter 2025

      Das Seminar begleitet den Entwurf mit dem Fokus auf nachhaltige, sortenrein trennbare und wiederverwendbare bzw. recyclingfähige Konstruktionen aus verschiedensten Materialien. Besonderes Augenmerk liegt auf der materialgerechten Entwicklung schöner Details und darauf, wie die Materialwahl die Entwürfe beeinflusst. Wir hinterfragen, was mit den gewählten natürlichen Rohstoffen – ohne Erdöl und Zement – technisch und gestalterisch möglich ist, und untersuchen zugleich die Grenzen, insbesondere hinsichtlich Gebäudeklassen und Materialeinsatz.

      Im ersten Schritt analysieren wir gebaute Projekte sowie Studien und Forschungsarbeiten. Darauf aufbauend entwickeln wir eigene Konstruktionsdetails für zentrale Bauteile wie Dach, Sockel und Deckeneinbindungen. Mit Unterstützung von Praxisexpertinnen evaluieren wir dabei Konstruktionen kritisch, um Herausforderungen im Planungs- und Bauprozess zu erkennen und zu verstehen.

    • façades - Konstruktionen der Gesichter der Stadt

      MA S25

      Seminar — master — sommer 2025

      Die aktuelle Beschäftigung mit den Bauten des „Neuen Französischen Realismus“, besonders deren Erscheinungsbild und Fassadengestaltung sind ein großes Thema im Anbetracht eines Entwurfes im Großraum von Paris.
      Was prägt das Erscheinungsbild in der Fernwirkung und vom direkten Außenraum? Welches Verhältnis haben Abstraktion und Detaillierung? Wie sind die Fassaden mit ihren gestaltprägenden Elementen und Texturen sowohl innen als auch außen detailliert?
      Wir arbeiten mit ausgewählten Beispielen an denen man einen besonderen Umgang in der Konstruktion und Materialisierung betrachten kann und forschen gemeinsam an eigenen Ansätzen eine Fassade zu gestalten und im Detailmaßstab auszuarbeiten.
      Nach der Analyse entstehen eigene Detailideen eines Fassadenausschnitts, Materialien und Techniken können im kleinen Maßstab probiert und erforscht werden.
      Das Seminar soll eine Detailsammlung für den gesamten Kurs entstehen lassen, die eine Basis für die Bearbeitung des eigenen Entwurfes sein kann.

    • Façades - Strukturen und Texturen

      BA S25

      Seminar — bachelor — sommer 2025

      Wie tragen Fassaden zur Identität und zum Charakter von Stadtteilen bei?
      Wie beeinflussen Fassaden das Erscheinungsbild des Gebäude selbst, und wie erzeugen sie die Atmosphäre und den Charakter des umgebenden Stadtraums?
      Um für die anspruchsvolle Aufgabe im Entwurf eine Fassade zu entwerfen vorbereitet zu sein begleitet uns das Seminar mit dem Thema der Gestaltgebung und Strukturierung einer Fassade. Ausgehend von der Betrachtung der Gesichter des Häuser im Haussmann-Paris, die durch ihre klare Gliederung, symmetrische Proportionen und die Verwendung von Naturstein das bekannte einheitliche Stadtbild prägen, möchten wir die aktuellen ästhetischen, sozialen und funktionalen Aspekte von Fassaden im Großraum Paris untersuchen und Ansätze für den eigenen Entwurf aufzeigen. Die Gestaltung von Fassaden mit unterschiedlichen Ebenen und Texturen schafft visuelle Tiefe und Dynamik. Dies wird durch die Analyse von Schatten, Licht und der Anordnung von Elementen untersucht.
      Wir arbeiten in einem Workshop-Format und vertiefen uns Schritt für Schritt, von der Öffnungsstruktur, über die nächste Ebene der Strukturierung und Tiefenwirkung weiter zur Materialisierung und Detaillierung eines Fassadenausschnitts, dargestellt in Zeichnungen und Modellen.

    • Le Grand Paris

      MA W24

      vorbereitendes Seminar für das Projektmodul Master im Sommersemester 2025 — master — winter 2024

      Als Vorbereitung auf unseren Entwurf im kommenden Sommersemester werden wir uns in diesem Semester mit aktuellen Positionen aus Frankreich beschäftigen. Ziel ist es, einen Überblick über die dortige Architekturszene zu bekommen, wobei wir insbesondere die Entwicklung im Großraum Paris in den Fokus rücken möchten. Dazu werden Sie in Einzelarbeit Referate zu städtebaulichen und architektonischen Positionen halten und diese im weiteren Verlauf nochmals verschriftlichen. Alle Beiträge werden zu einem Reader zusammengefügt, der die Grundlage für unsere Exkursion nach Paris im kommenden Sommersemester darstellt. Französischkenntnisse sind vorteilhaft.

    • STRUKTUR UND TEXTUR

      BA W24

      Begleitendes Seminar für das 3. Kernmodul — bachelor — winter 2024

      „Was alle angeht, können nur alle lösen.“ - Friedrich Dürrenmatt, Die Physiker
      Räume die funktionieren, können nicht von außen, von scheinbar allwissenden Architekt:innen geplant werden, sondern diese Planung muss das Ergebnis einer gemeinsamen, vielschichtigen Betrachtung sein, die die Interessen aller abbildet.

      Um die Fragestellungen im 3. Kernmodul optimal bearbeiten zu können, braucht es komplexes Wissen.
      Über das gesamte Semester hinweg gehen Entwurf und Seminar Hand in Hand und ermöglichen Einblicke in die verschieden inhaltlichen Themenschwerpunkte des Semesterentwurfes.
      Das Seminar schafft durch Inputs und begleitete Recherchen Wissen zu den Themen Typologien, Raumbildung, Erschließung, Struktur, Konstruktion, Licht und Darstellung, was am Entwurf direkt angewendet werden kann. Somit erlangt der Entwurf peu à peu mehr Tiefe und mit der bewussten Bearbeitung der räumlichen Situationen auch zunehmend einen eigenen klaren Ausdruck.

    • Sortenrein Bauen

      BA+MA S24

      Begleitseminar zum 5. Kernmodul | Projektmodul — bachelor + master — sommer 2024

      Das Bauwesen steht für mehr als die Hälfte des weltweiten Ressourcenverbrauchs. Die Weltbevölkerung wird bis 2050 voraussichtlich auf etwa zehn Milliarden Menschen steigen, was einen erheblichen Bedarf an Baustoffen mit sich bringt. Viele traditionelle Baustoffe werden nicht in ausreichender Menge verfügbar sein und/oder ihre Produktion sowie der Transport würden Unmengen an Energie und Emissionen verursachen.

      Einen entscheidenden Einfluss, könnte das sortenreine Bauen und Wiederverwenden von Bauteilen und Materialien haben.

      Doch wie können Bauelemente sortenrein getrennt und eine spätere Weiterverwendung von Beginn an mitgedacht werden? Darüber möchten wir mit euch anhand von Beispielen diskutieren, die Beispiele genau analysieren und versuchen, gemeinsam wichtige Lösungsansätze für den Entwurf zu formulieren.

    • UMBAU. WEITERBAU. NEUBAU. II

      MA W23

      Seminar — master — winter 2023

      Wie kann eine Umnutzung gelingen? Wie baut man weiter und welche Mittel sind dafür notwendig? Wie kann eine Vielfachnutzung bei Neubauten von Anfang an mitgedacht werden, um einen Abriss zu vermeiden?
      Aufbauend auf den Betrachtungen des Sommersemesters werden die gewonnen Erkenntnisse zusammengefasst, weitergedacht und mit Hilfe weiterer Projekte eingeordnet.
      Wir wollen gemeinsam vielschichtige und interdisziplinäre Zusammenhänge analysieren und verstehen. Das Ziel ist, das erarbeitete Wissen in einer Publikation zugänglich zu machen.

    • UMBAU. WEITERBAU. NEUBAU.

      BA+MA S23

      Seminar — bachelor + master — sommer 2023

      Etwa 50% der gesamten Energie, die für die Lebensdauer eines Gebäudes benötigt wird, entfallen auf die Errichtung der Primärstruktur. 45% auf die Benutzung und 5% auf den Abriss.Das sind enorme Mengen an Co2, die in Anbetracht der kurzen Lebenszeiten von Gebäuden nicht mehr vertretbar sind. Am besten also gar nicht Bauen?
      Im Sinne der drohenden Klimakatastrophe hätte das die größte Wirkung. Doch angesichts Problemen wie dem Mangel an bezahlbarem Wohnraum ist das keine Lösung. Einen entscheidenden Einfluss, kann das Wiederverwenden von Bauteilen und Materialien entfalten. Eine noch größere Wirkung hätte es jedoch, bestehende Gebäudestrukturen umzunutzen oder weiterzubauen. Doch wie funktioniert das und was ist dafür notwendig? Wie kann eine Umnutzung von Beginn an mitgedacht werden und Einfluss auf den Neubau haben, der wiederum in Zukunft umgenutzt und weitergebaut statt abgerissen werden muss? Darüber möchten wir mit euch, und Studierenden des Bauingenieurwesens und der Materialwissenschaften anhand von drei Beispielen diskutieren.
      Um vielschichtige Zusammenhänge zu verstehen wird Wissen erarbeitet und geteilt. Wir werden versuchen gemeinsam Lösungen zu finden und eine Haltung zu entwickeln. Am Ende des Semesters werden wir in einem eintägigen Sommersymposium mit den Architekt:innen und Ingenieur:innen der ausgewählten Projekte diskutieren, debattieren und versuchen gemeinsam wichtige Lösungsansätze zu formulieren.

    • Singende Steine

      MA W22

      Seminar — master — winter 2022

      Zum Masterentwurf sowie dem 3. Kernmodul Bachelor wird ein begleitendes Seminar angeboten, welches sich unter dem Begriff der ökologischen Nachhaltigkeit mit Natursteinmaterialien und deren Konstruktionsmethoden an ausgewählten Beispielen zeitgenössischer Architektur widmet. Die Teilnehmer sind aufgefordert sich mit ihren Untersuchungsobjekten schriftlich und zeichnerisch auseinanderzusetzen, sie regelrecht auf ihr Innerstes zu Sezieren, Studieren, Analysieren und die daraus erwachsenden Gedanken zur Weiterentwicklung deren wesensgebender Merkmale und Eigenheiten dem Seminarpublikum zu präsentieren.

    • Strukturelle Resilienz

      MA S22

      Seminar — master — sommer 2022

      Um die Entwurfsarbeit im Projektmodul Transformer zu unterstützen, werden wir parallel zu dieser im Seminar Strukturelle Resilienz ausgewählte Beispiele systematisch analysieren, die entweder in ihrer Nutzungsdauer strukturell bereits offen angelegt waren oder eine spätere Umwandlung erfahren haben. Die letztere Auswahl an Gebäuden soll zu dem Zeitpunkt ihrer Erbauung und in ihrer originären Funktion sowie nach der Umnutzung betrachtet, der jeweilig spezifisch entstehende architektonische Ausdruck zu beiden Zeitpunkten daraufhin miteinander verglichen werden. Dabei richtet sich unser Interesse maßgeblich auf die Untersuchung der jeweiligen Typologie, der spezifischen Gebäudestruktur und, mit dieser einhergehend, auf die konkret ausformulierte Konstruktion im Detail.

      Welche strukturellen Eigenschaften machen ein Bauwerk besonders robust und langlebig? In welchem Verhältnis stehen Tragwerk, Konstruktion und Anpassungsfähigkeit hierbei zueinander? Welche Parameter erhöhen das Umnutzungspotenzial eines Gebäudes und ermöglichen so prospektiv eine Multifunktion? Wie entsteht ein kontextspezifischer Charakter und inwiefern kann dieser sich verändern?

      Die Referenzprojekte sollen hierfür hinsichtlich dieser Themenschwerpunkte in Vorträgen beleuchtet und die gewonnenen Erkenntnisse daraufhin diskursiv herausgearbeitet werden. Die Relevanz des Materials als nachhaltigen Rohstoff sowie Aspekte der Vorfertigung und Wiederverwendung sollen dabei als Diskussionsgrundlage stets mitgeführt werden. Das so durch unsere Recherchen und die gemeinsamen, kritischen Auseinandersetzungen erworbene Wissen wird für die Arbeit am Entwurf während des Semesters immer wieder neu nutzbar gemacht.

    • Bauen am Wasser

      BA W21

      Seminar — bachelor — winter 2021

      Um die Entwurfsarbeit im 3 Kernmodul „Klar zur Wende“ zu unterstützen, werden wir uns in der Übung mit ausgewählten Referenzen in analytischer Aneignung auseinandersetzen. Ziel wird es sein, die vorgegebenen Objekte anhand verschiedener Themen zu untersuchen und diskursiv zu besprechen. Dabei richtet sich unser Interesse im besonderen Maße auf eine Untersuchung der Typologie, der Setzung in der Landschaft, der Konstruktion und den Eigenheiten des Ortes.

    • Langzeitbindung

      MA S21

      Seminar — master — sommer 2021

      Als entwurfsbegleitende Veranstaltung wird sich das Seminar mit den konstruktiven Eigenheiten und Grenzen des Werkstoffs Holz auseinandersetzen. Die Relevanz des Materials, als nachhaltiger Rohstoff, soll dabei als Diskussionsgrundlage immer mitgeführt werden. Die aktuellen Tendenzen im Blick behaltend, werden wir zeitgenössische Konstruktionsmethoden, neue Holzwerkstoffe, Fortschritte in der modernen Bauteilentwicklung und im Speziellen die Anwendung von hybriden Konstruktionen in Überkreuzung mit Beton und Stahl kennenlernen. In Studierendenvorträgen werden wir uns Fragen zum Tragverhalten, dem konstruktiven Aufbau einfacher und komplexer Bauweisen, den Vor- und Nachteilen bewährter und moderner Konstruktionsformen sowie deren Einbringen in zeitgenössischer Architektur stellen. Als Ergebnis unserer Recherchen und Diskussionen sollen die gewonnenen Erkenntnisse für die Arbeit am Entwurf nutzbar gemacht werden.

    • Fassadenseminar

      MA W20

      Seminar — master — winter 2020

      Durch die Bearbeitung von Themen aus Architekturtheorie und konstruktiver Praxis wird den Teilnehmern des Seminars die Fassade als ein entscheidender Teil im Entwurf eines Gebäudes nähergebracht. In diskursiver Form entwickelt sich das Seminar über die Betrachtungen von 150 Jahren Architekturtheorie zum Umgang mit der äußeren Erscheinung von Gebäuden hin zu einem Überblick materialbezogener Konstruktionsformen. Das Seminar bleibt den Teilnehmern des Entwurfs im Master vorbehalten und ist integrierter Bestandteil des Entwurfs.

    • Stein Holz Erde

      MA W19

      Seminar — master — winter 2019

      Zum Masterentwurf 37,5 VOLUMENPROZENT wird ein begleitendes Seminar angeboten, welches sich unter dem Begriff der ökologischen Nachhaltigkeit mit Materialien und deren Konstruktionsmethoden an ausgewählten Beispielen zeitgenössischer Architektur widmet. Die Teilnehmer sind aufgefordert sich mit ihren Untersuchungsobjekten schriftlich und zeichnerisch auseinanderzusetzen, sie regelrecht auf ihr Innerstes zu Sezieren, Studieren, Analysieren und die daraus erwachsenden Gedanken zur Weiterentwicklung deren wesensgebender Merkmale und Eigenheiten dem Seminarpublikum zu präsentieren.

    • Typologien religiöser Räume

      BA S19

      Seminar — bachelor — sommer 2019

      Begleitend zum Entwurfskurs findet ein typologisches Seminar statt, das sich vertieft mit Räumen und Orten des Religiösen auseinandersetzt. Das Seminar unterstützt die Entwicklung der eigenen architektonischen Konzepte für das Raumprogramm und dient der Reflexion der erweiterten Entwurfsbedingungen.

    • Typologien gemeinschaftsbildender Räume

      MA S19

      Seminar — master — sommer 2019

      Begleitend zum Entwurfskurs findet ein typologisches Seminar statt, das sich vertieft mit Räumen für die Gemeinschaft auseinandersetzt. Das Seminar unterstützt die Entwicklung der eigenen architektonischen Konzepte für das Raumprogramm und dient der Reflexion der erweiterten Entwurfsbedingungen.

    • House of Peace

      MA W18

      Seminar — master — winter 2018

      Als vorbereitende Veranstaltung für den Master Entwurf im kommenden Sommersemester bieten wir im Winter ein Recherche-Seminar an.

      In Bangui, der Hauptstadt der Zentralafrikanischen Republik, soll ein Haus des Friedens für die Interreligiöse Plattform Zentralafrikas entstehen, einer Organisation, in der sich Katholiken, Protestanten und Muslime zusammengefunden haben, um gemeinsam der Instrumentalisierung ihres Glaubens durch die regionalen Kriegsherren entgegenzutreten.
      In Kooperation mit dem House of One in Berlin, in dem Juden, Muslime und Christen in einem interreligiösen Austausch stehen, sowie der Universität Lomé (Republik Togo), werden wir die Grundlagen für dieses ambitionierte Vorhaben erarbeiten.

      Im Rahmen des Projektes House of Peace *, hat im November 2018 eine Reise zur Kontaktaufnahme mit den Beteiligten aus Afrika statt gefunden. Professor Johannes Kuehn traf in Lomé, der Hauptstadt von Togo, unsere Ansprechpartner aus der Zentralafrikanischen Republik sowie Vertreter der Universität EAMAU. Darüberhinaus wurden in einer interuniversitären Vereinbarung die Grundlagen für eine Projektbezogene Zusammenarbeit zwischen der Bauhaus-Universität Weimar und der Universität EAMAU gelegt.

      http://www.eamau.org/protocole-daccord-entre-la-bauhaus-universitat-weimar-et-leamau/

      *seminar/house-of-peace

    • Ausstellen

      BA W18

      Seminar — bachelor — winter 2018

      Die Übung Ausstellen wird den Entwurf Schauhaus Bauhaus begleiten und inhaltlich vervollständigen. Durch Vorträge von eingeladenen Kreativschaffenden, die sich in ihrem professionellen Arbeiten mit dem Ausstellen und Kuratieren beschäftigen, sollen die Teilnehmer an die Schwierigkeiten des Ausstellens herangeführt werden. Mit der so erlangten Sensibilität können eigene Analysen von ausgesuchten Ausstellungsarchitekturen unternommen und der Seminargruppe vorgestellt werden. Das im Seminar erlangte Wissen über den Zusammenhang zwischen Architektur und Ausstellungspraxis soll im Entwurf angewendet werden.

    • Typus und Konstruktion

      BA+MA S18

      Seminar — bachelor + master — sommer 2018

      Im Rahmen des Entwurfs KREATIVKONDENSATOR erfolgt die Reflektion des ideellen und konstruktiven Errichtens einer Kreativfabrik, in welcher sowohl Prozesse der Kreativproduktion als auch der Wissensvermittlung räumlich gefasst und in einen eigenständigen Typus überführt werden.
      Im begleitenden Seminar TYPUS UND KONSTRUKTION werden wir uns mit Formen „alter“ Arbeit und deren architektonischer Hardware beschäftigen, mit dem Ziel, Auskunft über Typologien der Arbeitsarchitektur und deren spezifischer Konstruktion zu erhalten. Im Sinne der Methode der 'Analogen Architektur' (Aldo Rossi / Miroslav Šik) werden historische Typologien und ihre spezifischen Konstruktionsweisen analysiert. Das so gesammelte Wissen soll anschließend durch den analogisierenden Prozess seinen Niederschlag im Entwurf finden.
      Die typologische Untersuchung beinhaltet dabei den Aufbau der Erschließung, funktionale Grundrisszusammenhänge und die Reflektion der Funktionsabläufe in der spezifischen Nutzung des Gebäudes sowie den Zusammenhang zwischen Außenraum und Innenraum. Die konstruktive Untersuchung widmet sich dem statischen System (Wände, Decken, Dachtragwerke), Aussagen zum Material in Bezug auf das jeweilige statische System und die bauphysikalischen Eigenschaften der Konstruktion. Die ästhetische Untersuchung hinterfragt zudem den architektonischen Ausdruck in Bezug auf seine materiellen Träger und die Wirkung in den Außenraum (z.B. Stadtraum oder Landschaft). Die Qualitäten der Innenräume werden gefiltert und eine kulturelle bzw. architekturgeschichtliche Einordnung vorgenommen.
      Auf diese Weise werden die Studierenden in die Lage versetzt, mit architektonischen Referenzen dialektisch umzugehen, ihren Kenntnishorizont über den Zusammenhang von Typus und Konstruktion zu erweitern sowie das Verständnis für die Wirkungsweise verschiedener Konstruktionen im Hochbau zu vertiefen.

    • Konstruieren mit Holz

      BA W17

      Seminar — bachelor — winter 2017

      Holz hat als klassisches Baumaterial seit je her eine große Bedeutung. Der in der Moderne fast vergessene Baustoff erfährt jüngst wieder zunehmende Aufmerksamkeit und hat sich in den letzten Jahren in seiner Anwendung intensiv weiterentwickelt. Der Holzbau hat in den vergangenen Jahren, durch neue Brandschutzkonzepte, einen Weg zurück in die Innenstädte und jüngst sogar in den Hochhausbau gefunden. Nicht zuletzt ist die besondere Auseinandersetzung mit diesem Baustoff aus dem steigenden Bedürfnis nach ressourcenschonenden, nachhaltigen und damit biobasierten Baulösungen begründet.
      Anhand von ausgewählten Beispielen werden die unterschiedlichen Bauweisen und Konstruktionsprinzipen untersucht und in Form von Referaten präsentiert. Zusätzlich werden zeichnerische sowie bautechnologische Analysen der Projekte erstellt. Die Untersuchungsergebnisse werden anschließend in einem Kompendium zur Verfügung gestellt. Das so erweiterte konstruktive und architektonische Wissen dient als Grundlage für den materialbezogenen Entwurf VON VOGELS WEGEN und dessen Detaillierung. Dabei steht nicht allein das Konstruieren im Vordergrund, sondern im besonderen Maße die symbiotische Verbindung von Architektur und ihrer spezifischen Herstellung. Das Seminar KONSTRUIEREN MIT HOLZ wird durch Besuche im Bau befindlicher Holzbauprojekte in Weimar begleitet und durch den Workshop MODERNER HOLZBAU im Rahmen einer Exkursion nach Vorarlberg ergänzt.

    • Field Study Ethiopia

      BA+MA S17

      Seminar — bachelor + master — sommer 2017

      Das Seminar befasst sich mit der Recherche von Forschungs- und Entwicklungsprojekten, die in den letzten Jahren in Afrika stattfanden. Dabei geht es um die Aufarbeitung von Siedlungsstrukturen, Konstruktionsarten, Gebäudetypologien, Bauweisen und geographischen Besonderheiten unter Berücksichtigung des wirtschaftlichen, sozialen und politischen Hintergrunds ihrer Entstehung.
      Das Seminar unterstützt das Projekt In³ – Integrated Infrastructure – A Planning Strategy for Sustainable and Resilient Spatial Structures in Emerging Cities in Sub-Saharan Africa und bildet die begleitende Grundlage für das Entwurfsmodul im Sommersemester 2017, das sich entwerferisch mit typologischen Studien und konstruktiven Lösungsansätzen als „Case Study“ öffentlicher Bauten in Äthopien befassen wird.

    • Museen

      BA+MA W16

      Seminar — bachelor + master — winter 2016

      Teil 1 City Metaphors – Building Metaphors

      Zu einem Begriff der Ungers’schen City Metaphors soll ein prägnantes Bild eines Gebäudes, das die Reihe aus Stadtmetapher und Analogie sinnvoll ergänzt, gesucht und in Form eines Fotos oder Zeichnung visualisiert werden.
      Danach soll ein Bildpaar zu einem eigenen Thema gesucht werden, bestehend aus einer Analogie und einem Gebäude.

      1. Suchen Sie zu jeweils einem Begriff der Ungers‘schen City Metaphors ein prägnantes Bild eines Gebäudes, das die Reihe aus Stadtmetapher und Analogie sinnvoll ergänzt.
      2. Wählen Sie ein eigenes Thema, zu dem Sie ein Bildpaar aus Analogie und Gebäude zusammenstellen.

      Teil 2 Werkanalyse – Museen – thematische Paare

      Arbeitsgruppen aus zwei Studierenden analysieren jeweils gemeinsam zwei vorgegebene Museumsprojekte desselben oder unterschiedlicher Architekten und stellen sie im Seminar vor. Ziel ist, die Gebäude miteinander zu vergleichen und im Spannungsfeld von allgemeiner Relevanz und spezifischer Situationsbezogenheit zu erfassen und darzustellen.

  • Workshops und Exkursionen

    • HINTER DEN KULISSEN

      BA W24

      Begleitender Workshop+Exkursion für 3. Kernmodul — bachelor — winter 2024

      Unsere Exkursion mit integriertem Workshop führt uns an ausgewählte Aufführungsorte. Wir werden lernen, diese in ihrem räumlichen und geschichtlichen Kontext zu erfassen und zu verstehen, wie es zu diesen Gebäuden kam und was sie auszeichnet.

      Wir werden uns mit AkteurInnen austauschen, die uns schildern, worauf es ihnen bei der Nutzung von Aufführungsräumen ankommt und wir werden diskutieren, mit welchen Mitteln das erreicht werden kann. Zudem besichtigen wir spannende Um-, Weiter- und Neubauprojekte und sprechen mit deren ArchitektInnen.

      Der Workshop wird durch Referate vorbereitet, die im Anschluss nochmal kritisch überarbeitet werden.

    • CLOSEUP:PRAG

      BA+MA S24

      Begleitworkshop und Exkursion zum 5. Kernmodul | Projektmodul — bachelor + master — sommer 2024

      Die Architektur in Prag ist ein faszinierendes Zusammenspiel aus verschiedenen Stilen und Epochen. Wir besuchen die mittelalterliche Prager Burg mit ihren zwischen 1920 und 1935 entstandenen Interventionen durch den Architekten Joze Plecnik, eindrucksvolle Bauten des Barock, der tschechischen Moderne und des kubistischen Stils, bis hin zur Gegenwart. Die Architektur in Prag erzählt eine vielschichtige Geschichte, die uns auf eine visuelle Zeitreise durch die Jahrhunderte mitnimmt und das Bauen im Kontext vor Augen führt. Wir werden in Prag bei ausgiebigen Stadtspaziergängen die Architektur und Geschichte der Stadt entdecken, Akteur*innen treffen und versuchen, in die Prager Architekturszene einzutauchen.

    • CLOSEUP:BERLIN

      BA+MA W23

      Workshop+Exkursion — bachelor + master — winter 2023

      Auf der Exkursion zum Workshop CLOSEUP:BERLIN wollen wir in die Geschichte der Stadt Berlin und insbesondere der City West eintauchen. Auf Stadtspaziergängen durch Berlin versuchen wir die Gebäude und deren zeitspezifische Hintergründe zu verstehen. Wir werden uns mit Akteurinnen austauschen, die für eine Ressourcen und Gebäudebestand schonende Weiterentwicklung der City West eintreten. Zudem besichtigen wir spannende Um-, Weiter- und Neubauprojekte und sprechen mit deren Architektinnen.

    • INSIGHT:WEIMAR

      BA W23

      Workshop — bachelor — winter 2023

      „Was alle angeht, können nur alle lösen.“ - Friedrich Dürrenmatt, Die Physiker
      Räume die funktionieren, können nicht von außen, von scheinbar allwissenden Architekt:innen geplant werden, sondern diese Planung muss das Ergebnis einer gemeinsamen, vielschichtigen Betrachtung sein, die die Interessen aller abbildet.

      Um die Themen des Semesters optimal bearbeiten zu können, braucht es komplexes Wissen.
      Über die erste Woche hinweg werden wir Einblicke in die verschieden inhaltlichen Themenschwerpunkte des Semesterentwurfs sammeln und relevantes Wissen von Expert:innen erhalten.
      Ziel ist es, eine persönliche Haltung in einem Statement zu manifestieren, welches die Grundlage der weiteren Projektarbeit während des gesamten Semesters sein wird.

    • CLOSEUP:BRÜSSEL

      BA+MA S23

      Exkursion+Workshop — bachelor + master — sommer 2023

      Die belgische Architektur gehört seit über einem Jahrzehnt zu den spannendsten baukulturellen Tendenzen Europas. In den frühen 2000er Jahren entwickelte sich eine Architekturszene, welche durch erfrischend radikale Entwürfe auf sich aufmerksam machte. Wir werden in Brüssel bei ausgiebigen Stadtspaziergängen interessante Umbau-, Weiterbau- und Neubauprojekte aufsuchen, deren Architekt*innen treffen und so anhand von Gesprächsrunden in den belgischen Architekturdiskurs und die Besonderheiten der belgischen Architektur eintauchen.

    • Spur der Steine

      BA+MA W22

      Workshop mit Exkursion — bachelor + master — winter 2022

      Durch einen Workshop mit Exkursion am Anfang des Semesters erfolgt eine Einführung zu Naturstein, insbesondere Schiefer. Die technischen Aspekte des Schieferbergbaus über und unter Tage, dessen Weiterverarbeitung und vielseitige Verwendung schlagen den Bogen zum architektonischen und baukonstruktiven Umgang mit Naturstein. Darüber hinaus erhalten wir gemeinsam die Gelegenheit uns am Objekt mit historischen und zeitgenössischen Konstruktionsformen aus Stein, insbesondere Schiefer und dessen Materialbeschaffenheit vertraut zu machen.
      In einem Workshop erhalten wir erste handwerkliche Übung im Umgang mit Schiefer. Die Erschließung der Eigenheiten des Schiefers als natürliches Material, Kulturgut und Baustoff sowie die Auseinandersetzung mit dem Spezifischen des Ortes, dem ehemaligen Schieferbruch Lehesten, bilden die Grundlage einer künstlerische Auseinandersetzung in Zusammenarbeit mit der Fakultät Kunst.

    • Transformationen in Leipzig und Dresden

      MA S22

      Exkursion — master — sommer 2022

      Unterstützend zu dem Seminar Strukturelle Resilienz werden in dem Workshop gemeinsam gebaute Beispiele besucht, die auf exemplarische Weise einen Umnutzungsprozess durchlaufen haben. In Form einer Exkursion konzipiert, beleuchtet der Workshop anschaulich, wie sich städtische Transformationsprozesse abspielen. Dabei spannt sich der Betrachtungshorizont vom urbanen Kontext über Grundrisstypologien bis zum Detail, in dem Alt und Neu aufeinandertreffen.

      Die Exkursion wird von den Teilnehmer*innen in Form eigener Aufzeichnungen (z.B. Skizzen, Fotos) dokumentiert, die für die weitere Bearbeitung zu einem gemeinsamen Fundus für alle Beteiligten dienen sollen.

    • Ort Referenz Konstruktion

      BA W21

      Exkursion/Workshop — bachelor — winter 2021

      Als unterstützende Veranstaltung zum Entwurf „Klar zur Wende“ im 3.Kernmodul, wollen wir gemeinsam eine Ortsbegehung durchführen und uns die Gegebenheiten der Landschaft sowie tradierte Eigenheiten der lokalen Architektur aneignen. Darüberhinaus werden wir uns mit dem Baustoff Holz, seiner Herkunft und Produktion vertraut machen.

    • Auf dem Holzweg

      MA S21

      Workshop — master — sommer 2021

      Als begleitendes Format zum Entwurf Laboratorium Lignum werden wir die wieder stattfindende Entwurfswoche nutzen, um unter den noch immer herrschenden erschwerten Pandemiebedingungen Treffen der Kursteilnehmer im Freien mit Tagesausflügen und Inputvorträgen möglich zu machen. Die Inhalte werden sich nahe am Entwurfsthema halten und sich mit dem Entwurfsort, dem Verfügbarmachen von Holz, dem Bauen mit Holz und typologischen Exkursen beschäftigen.
      Wir müssen jedoch die jeweils aktuelle Lage der Pandemiemassnahmen berücksichtigen und unser Programm wenn nötig anpassen.

    • Fassadenworkshop

      BA+MA W20

      Workshop — bachelor + master — winter 2020

      In der eigenen thematischen Auseinandersetzung mit Fassaden aus Vergangenheit und Gegenwart wird in Analyseschritten das Verständnis für die entwerferischen und konstruktiven Hintergründe von Fassaden geschult. Es werden dafür Gebäude in Erfurt, Weimar und Jena von den Teilnehmern in Eigenverantwortung besucht, dokumentiert, literarisch recherchiert und schließlich zeichnerisch analysiert. Im Zentrum steht dabei die Entwicklung des Verständnisses der tektonischen Besonderheiten der jeweiligen Fassade. Der Workshop ist den Teilnehmern des Bachelor- und Masterentwurfs vorbehalten und bildet jeweils einen integrierten Bestandteil des Entwurfs.

    • Funktion und Methode

      BA+MA W19

      Workshop+Exkursion — bachelor + master — winter 2019

      Die Entwurfsteilnehmenden erfahren durch einen Workshop mit Exkursion am Anfang des Semesters eine Einführung. Wir spüren zunächst gemeinsam der Gewinnung natürlicher Baustoffe, den nachhaltigen Umgang damit und ihrer Verarbeitung als Werkstoff nach. Darüber hinaus erhalten die Teilnehmenden die Gelegenheit sich am Objekt mit historischen Konstruktionsformen aus Stein, Lehm und Holz vertraut zu machen. Auch der forschende Blick und das physische Erfahren bei der Errichtung aktueller Bauprojekte, ihr Fortschritt über verschiedene Bauphasen, bringt uns natürliche Stoffe als Konstruktionsmaterial näher.
      Die funktionalen Aspekte der Obstverarbeitung in flüssiger Form werden den Teilnehmenden anschließend in Wort und Tat nahegebracht.

    • Begegnungen

      BA+MA S19

      Exkursion und Workshop — bachelor + master — sommer 2019

      Im Rahmen der Exkursion wird auf verschiedenen Ebenen Bezug zu den im Entwurf entscheidenden Themen aufgebaut. Wir werden Afrika durch die Anschauung künstlerischer Artefakte und dem Gespräch mit in Deutschland lebenden Afrikanern näher kommen. Wir werden Orte der Gemeinschaft, Orte des Religiösen, Orte des Interreligiösen und Orte der stillen überkonfessionellen Andacht besuchen.
      Der Workshop beschäftigt sich mit dem explorativen Aneignen der oben genannten Orte durch Kleingruppen, welche in der gesamten Exkursionsgruppe im gemeinsamen Gespräch vorgestellt und diskutiert werden.

    • Display

      BA W18

      Exkursion und Workshop — bachelor — winter 2018

      Während der 3-tägigen Exkursion besuchen wir in Leipzig Ausstellungs-Räume und Orte, die durch die eigene Anschauung und das eigene Erleben erforscht werden sollen. Zur Fragestellung, auf welche Art das Verhältnis zwischen Raum und Objekt gelesen werden kann, werden wir durch die Kuratoren der jeweiligen Institution unterstützt. Das gesammelte Wissen soll Entwurf und Seminar befruchten. In einem Workshop werden schließlich eigene Kleinarchitekturen entwickelt und im Maßstab 1:1 gebaut.
      Für die Kunstwerke von 5 Studierenden der Freien Kunst, entwerfen und bauen unsere Studierende des 3.KM Kleinarchitekturen als Display. Dabei ist vor allem die prozesshafte Zusammenarbeit und das Entdecken und Ausdiskutieren von unterschiedlichen Ansätzen zum Ausstellen von Kunst in einer spezifischen räumlichen Situation zwischen den werdenden Architekten und den Freien Künstlern Ziel der Veranstaltung.

    • Arbeitswelten

      BA+MA S18

      Exkursion und Workshop — bachelor + master — sommer 2018

      Während sich das Begleitseminar TYPUS UND KONSTRUKTION zum Entwurf KREATIVKONDENSATOR mit Formen „alter“ Arbeit und deren architektonischer Hardware auseinandersetzt, geht es in diesem Format um die „neuen“ Formen der Arbeit.
      Die Industriegesellschaft hat sich zu einer Dienstleistungs-, Wissens und Konsumgesellschaft gewandelt. Neben den Resten des produzierenden Gewerbes entsteht derzeit eine neue Schicht von dienstleistenden Berufen, welche hoch spezialisiert sind, sich flexibel an unterschiedlichste Arbeitssituationen sowie Arbeitszeiten anpassen können und ortsunabhängig agieren. Vor allem die sogenannte Kreativwirtschaft ist charakterisiert durch die genannten Eigenschaften und entwickelt sich in ihren Formen des Arbeitens in einem dynamischen Prozess, der in direkter Beeinflussung von den sich stetig weiterentwickelnden Technologien der Datenverarbeitung, Kommunikation und Wissensproduktion steht.
      Es ist anzunehmen, dass sich die aus der Arbeitsform entwickelnden Bedürfnisse nach unterstützender Hardware auch räumlich niederschlagen. Wie sieht also das konkrete Raumangebot für den Kreativunternehmer aus? Weiterhin ist anzunehmen, dass nicht nur der Raum zum Arbeiten neu gedacht werden muss, sondern auch seine zeitliche Verfügbarkeit. Es stellt sich demnach auch die Frage nach neuen Formen des Raummanagements durch die Bewirtschafter.
      Zu guter Letzt stellt sich die Frage nach den weichen Kriterien von Arbeitswelten: nach der Atmosphäre. Wie unterstützend kann eine Raumstruktur oder ein Gebäudekomplex für das kreative Arbeiten gedacht sein? Wie stark wird durch die Architektur selbst Kreativität unterstützt?
      Um diese Fragen zu beantworten, werden wir in einem Gesprächsworkshop während der Exkursion ARBEITSWELTEN nach Berlin mit Protagonisten der Kreativwirtschaft in Kontakt kommen und Gelegenheit haben zu erfahren, was Kreativarbeit an Bedürfnissen formulieren kann und welche räumlichen Angebote bereits darauf reagieren.

    • Moderner Holzbau

      BA W17

      Workshop — bachelor — winter 2017

      Während des Workshops mit Exkursion nach Vorarlberg geben verschiedene Protagonisten des Holzbaus Auskunft über die Möglichkeiten der zeitgenössischen Verarbeitung, Konstruktion und Gestaltung mit Holz. Das so gewonnene Wissen ergänzt die Erkenntnisse aus dem Seminar KONSTRUIEREN MIT HOLZ und dient als Grundlage für den materialbezogenen Entwurf VON VOGELS WEGEN und dessen Detaillierung.
      Begonnen mit einem Besuch im Forst, der Erkundung der Verarbeitungsschritte vom Einschlag, über die Verarbeitung im Sägewerk, der industriellen Herstellung von Holzbaustoffen, sowie Holzbaufertigteilen, der handwerklichen Weiterverarbeitung bis hin zur Oberflächenbearbeitung wird umfassendes Wissen zum Bauen mit Holz gewonnen.

    • Werkstattgespräche Afrika

      BA+MA W17

      Exkursion und Workshop — bachelor + master — winter 2017

      Es werden Akteure des Bauens in Afrika besucht, welche in ihren Büros realisierte Projekte und Ideen erläutern. Gemeinsam können jeweils im Nachgang die Perspektiven und Einflussfaktoren zum Bauen in Afrika diskutiert werden.
      Neben Werkbesuchen bei Kéré Architecture, Ziegert|Roswag|Seiler Architekten Ingenieure, ist unter anderem geplant das Institut für Raumexperimente (Gründungsdirektor Olafur Eliasson, Co-Direktoren Christina Werner und Eric Ellingsen) und das Studio Olafur Eliasson zu besuchen. Die Werkgespräche liefern die Möglichkeit im direkten Gespräch Akteure des Bauens in Afrika nach ihren Erfahrungen zu befragen.
      Diese Informationen werden durch die Kursteilnehmer in Gruppenarbeit durch Bild und Ton festgehalten und mittels einer redaktionellen Bearbeitung zu einem Exzerpt zusammengefasst. Das so gesammelte Wissen soll zusammen mit dem Seminar Field Study Ethiopia als Grundlage für das gestalterische Handeln im Entwurf Case Study Ethiopia dienen.

    • Mauerwerk Workshop in der MFPA Weimar

      BA W16
  • ABSCHLUSSARBEITEN - THESIS

    • Bewerbung

      Die Bewerbung für die Bachelor- und Master-Thesis erfolgt bis zum 15.03. für das Sommersemester und bis zum 15.09. für das Wintersemester. Für die Bearbeitung der Master-Thesis steht es offen, ein eigenes Thema vorzuschlagen oder das angebotene Semesterthema zu bearbeiten. Zur Bearbeitung der Bachelor-Thesis wird ausschließlich das Semesterthema angeboten. Wir bitten um ein Portfolio als Pdf (max. 10 MB). Bitte senden sie uns ihre Bewerbung per E-Mail an bauko@archit.uni-weimar.de. Ansprechpartnerin zu Bewerbung, Ablauf und weiteren Thesisangelegenheiten ist Sophia Springer.

      Wir freuen uns auf Ihre Bewerbung!

Fakultät Architektur + Urbanistik