Neue Geschichten einer alten Narrative - ein Schaudepot für Eisenhüttenstatt
Projektinformationen
eingereicht von
Benjamin Elias Schatz
Lehrende
Entwerfen + Baukonstruktion, Prof. Dipl.-Ing. Johannes Kuehn
Prof. Dr. habil. Hans-Rudolf Meier
Dipl.- Ing. Michael Kraus
Studiengang:
Architektur (Master of Science (M.Sc.))
Projektbeschreibung
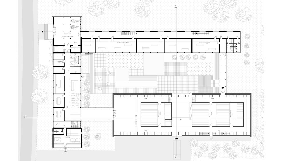
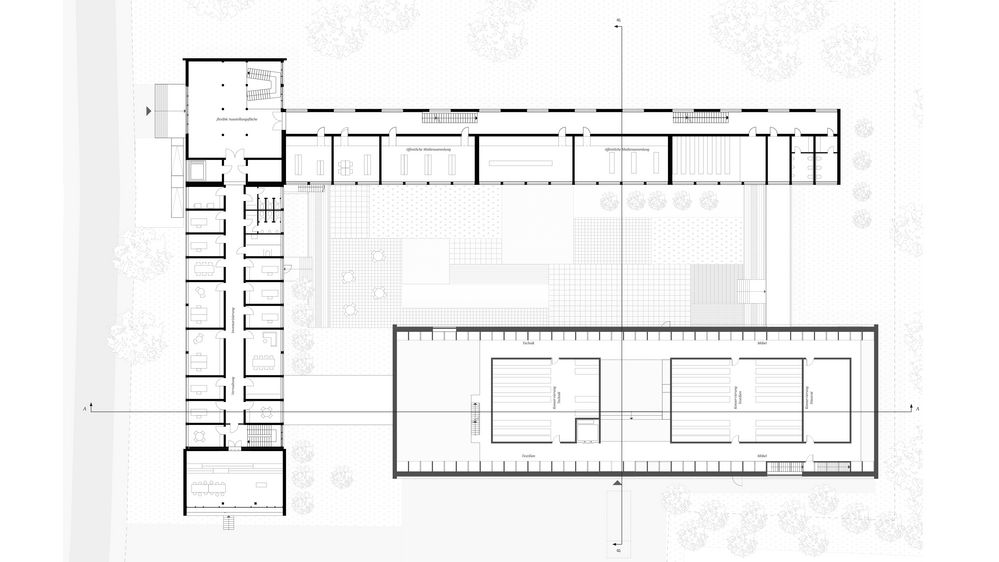
Das Museum Utopie und Alltag in Eisenhüttenstadt hat eine 3000m² große Sammlung an DDR-Gegenständen angehäuft, die aktuell nicht öffentlich gemacht und angemessen konserviert werden kann. Das Museum möchte die Alltagskultur der DDR, die in den letzten 30 Jahren immer weiter in Vergessenheit geriet, wieder aufleben lassen. Durch Sichtbarmachen und Zuhören werden im neuen Schaudepot Lebenswelten und Geschichten wieder thematisiert. Das Museum hat ein denkmalgeschütztes Gebäude gewählt, in dem Sonderausstellungsflächen, Verwaltungsbüros, ein Café und Workshopräume ohne grobe Eingriffe Platz finden. Technisch anspruchsvolle Raumfunktionen der Sammlungspflege und klima-/lichtschützende Sammlungsflächen werden im Neubau verteilt, der das Ensemble des Bestands vollendet. Im Zentrum des Entwurfes steht der Erhalt von Erinnerungsobjekten. Gleiche Aufmerksamkeit soll der schwindenden Bausubstanz der ganzen DDR gelten, welche in die Sammlung intergiert wird.
Die Spangenkonstruktion des Neubaus bezieht sich auf die modulare DDR-Architektur. Das Tragwerk wird sowohl von innen als auch von außen mit Objekten der DDR behangen. Innen wird das Holztragwerk zum flexiblen Regal für Kleines. Von außen bietet es die Struktur, um historische Fassadenteile der DDR-Architektur aufzunehmen. Auf diese Weise wird die Sichtbarkeit der Sammlung auch in den Stadtraum erweitert. Der neue Stadtbaustein ist als wichtiges Symbol dafür zu verstehen, dass die Lebenswelt der ostdeutschen Bevölkerung lebt.























