FALLBEISPIEL einer resilienten Struktur
Projektinformationen
eingereicht von
Laura Schieferdecker
Lehrende
Prof. Johannes Kühn, Paco Motzer
Studiengang:
Architektur (Bachelor of Science (B.Sc.))
Projektbeschreibung
Link zum gesamten Projekt im Anhang.
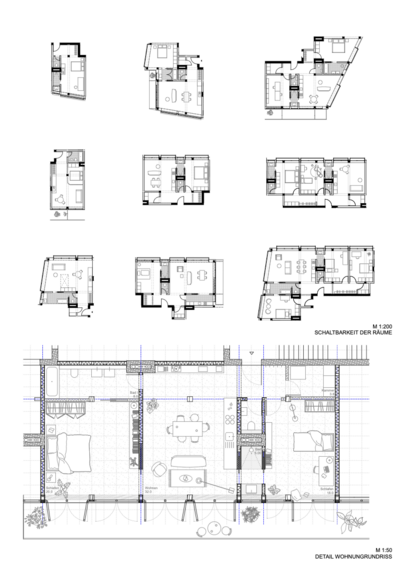
Im Kontext des Klimawandels, der Ressourcenknappheit, rasant steigenden Bodenpreisen und einem angespannten Wohnungsmarkt, stellt sich die Frage, wie wir als Menschheit in Zukunft nachhaltig und sozial gerecht zusammen leben können. Der Entwurf versteht sich als Fallbeispiel eines transformativen Gebäudes, welches mindestens 100 Jahre besteht und sich an zukünftige Nutzungsbedingungen anpassen kann. Es wird anhand eines Grundstücks in Leipzig Zentrum-West veranschaulicht und ist zunächst als Wohn- und Bürogebäude mit öffentlicher Nutzung im Erdgeschoss geplant. Das Gebäude besteht aus drei Strukturen unterschiedlicher Dauerhaftigkeit, Funktion und Materialität, welche eine kurzfristige, mittelfristige und langfristige Anpassungen an veränderte Nutzungsbedarfe ermöglichen. Die Reduzierung der tragenden Elemente auf den Skelettbau und die Kerne ermöglicht eine freie Grundrissaufteilung, sowie Flexibilität in der Anzahl der Einheiten. So ist es möglich auf einer Etage eine Einheit, jedoch auch bis zu 16 Einheiten auszubilden. Die Einheiten werden durch Funktionsbänder gegliedert, welche jede Einheit mit einem Bad und Installationsanschluss versorgen. Alle Elemente orientieren sich am Ständermaß des Holzrahmenbaus von 62,5cm, sodass Anpassungen unkompliziert vorgenommen werden können. Im Sinne der Nachhaltigkeit, wurde auf die Verwendung von Materialien mit niedriger CO2-Bilanz, sowie die Möglichkeit der Wiederverwendung geachtet.





